Мы используем куки-файлы. Соглашение об использовании
Онлайн-бронирование

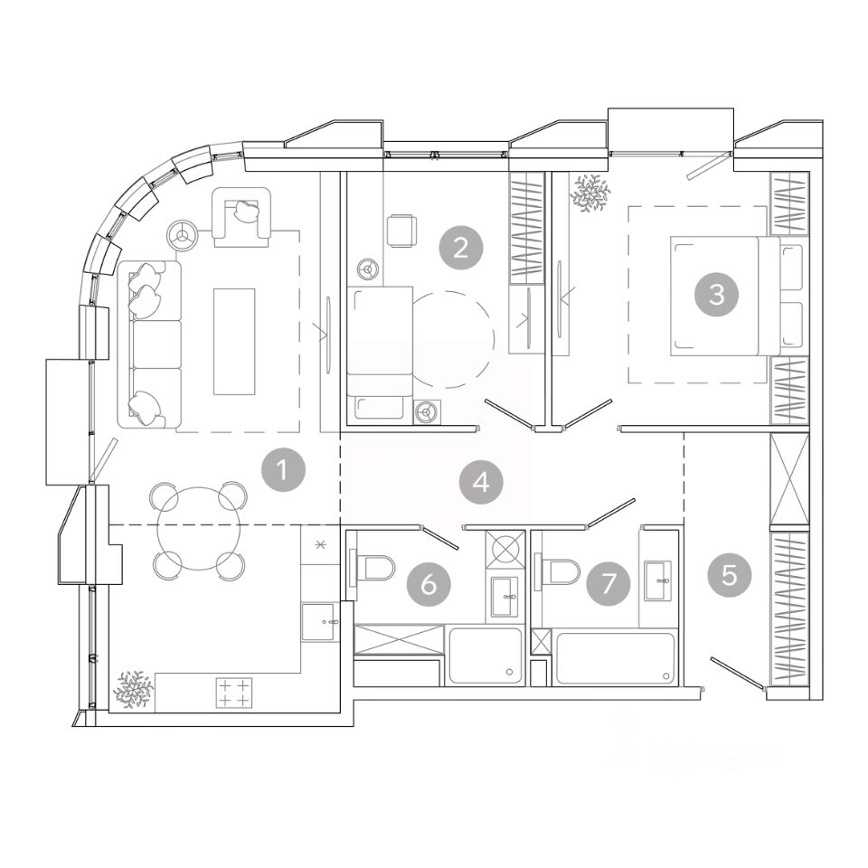
Продается 3-комн. квартира, 78,5 м²

Транспортная доступность 7,6 из 10Подробнее
Общая площадь78,5 м²
Жилая площадь26,9 м²
Площадь кухни27,6 м²
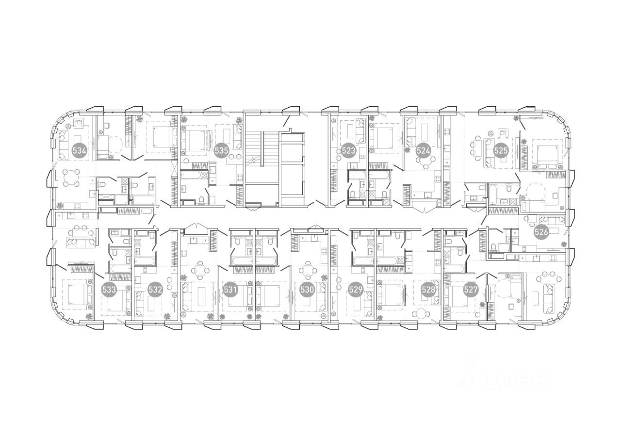
Этаж8 из 17
Год сдачи2027
ДомНе сдан
ОтделкаБез отделки
Продается 3-к квартира площадью 78.5 кв.м. на 8-м этаже УНО Соколиная Гора — новое поколение жилой недвижимости в историческом районе Москвы в непосредственной близости от Измайловского парка. Динамичная и современная архитектура формирует доминанту района и становится центром визуального притяжения, гармонично cочетая баланс между урбанистической энергией современной Москвы и спокойствием природы. Благодаря уникальной локации вся Москва будет для вас как на ладони удобные транспортные развязки, выезды на ключевые магистрали, метро и МЦК в шаговой доступности.

О квартире

Тип жилья

Новостройка

Общая площадь

78,5 м²

Жилая площадь

26,9 м²

Площадь кухни

27,6 м²

Высота потолков

2,98 м

Санузел

2 раздельных

Вид из окон

Во двор

Отделка

Без отделки

О доме

Количество лифтов

1 пассажирский, 1 грузовой

Тип дома

Монолитный

Парковка

Подземная

Понравилась квартира — узнайте о ней больше

Застройщик ответит на все вопросы

Отделка в ЖК

  • Без отделки

О ЖК «УНО Соколиная гора»

  • Сдача комплекса
    Сдача в 2 кв. 2027
  • Застройщик
    ГК Основа
  • Класс
    Бизнес
  • Тип дома
    Монолитный
  • Парковка
    Подземная
  • Отделка
    Без отделки
  • Тип комплекса
    Жилой комплекс
Похоже на то, что вы ищете?

Особенности жилого комплекса

  • Отделка

  • Парковка

  • Внутренний двор

  • Архитектура

  • Входная группа

Подробнее о жилом комплексе

Акции в ЖК «УНО Соколиная гора»

Узнайте про персональные условия и дополнительные скидки при покупке квартиры у застройщика
logo

Скидки до 15%

Выгодно
logo

Скидка 6% на избранные лоты

logo

Скидка 4% на избранные лоты

logo

Скидка 10% на избранные лоты

logo

Скидка 15% на избранные лоты

Рассрочка 0%

Ипотечный калькулятор
  • Базовая
  • Семейная
  • ИТ-ипотека
  • 20%
  • 30%
  • 40%
  • 50%
лет
  • 10 лет
  • 20 лет
  • 30 лет
Загружаем предложения от застройщика и банков
Корпус проверен наш.дом.рф
Обновлено 14 апреля 2026
  • Нет в реестре проблемных объектов
  • Застройщик не банкрот
  • Есть эскроу счёт
  • Актуальные фото стройки

Ещё квартиры в жилом комплексе

81 квартира в продаже · Сдача в 2 кв. 2027
ЗастройщикГК Основа
Год основания: 2016
Строится: 24 дома в 10 ЖК
36 345 500 ₽
logo
Скидки до 15%Акция от застройщика
Цена за метр
463 000 ₽/м²
Условия сделки
долевое участие (214-ФЗ)