Мы используем куки-файлы. Соглашение об использовании
Онлайн-бронирование

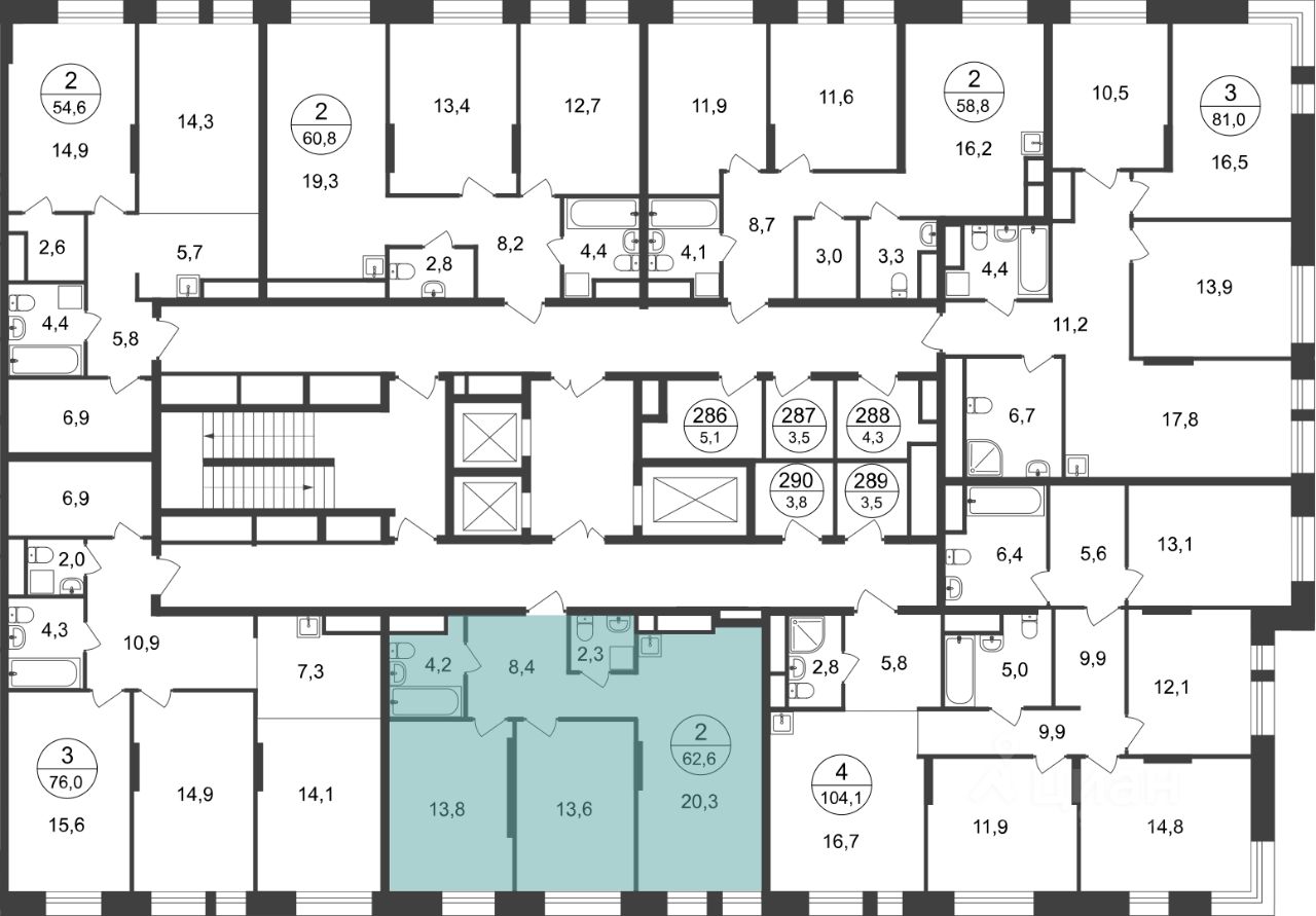
Продается 2-комн. квартира, 59,6 м²

Транспортная доступность 5,9 из 10Подробнее
Общая площадь59,6 м²
Площадь кухни20,3 м²
Этаж20 из 22
Год сдачи2026
ДомСдан
ОтделкаПредчистовая
Открытие продаж готовых квартир! Продается двухкомнатная квартира с отделкой в 11 квартале города-парка "Первый Московский". Общая площадь квартиры - 59,6 кв. м, этаж - 20 из 22. Тип дома - монолитный. Дом сдан! ТОЛЬКО ДО 30 АПРЕЛЯ выгодные условия на приобретение квартиры в ипотеку или рассрочку. Звоните - и мы подберем оптимальное предложение под ваш запрос! Город-парк "Первый Московский" расположен всего в 7 км по Киевскому шоссе от МКАД на территории Новой Москвы. Из города-парка прямой выезд на Киевское шоссе и трассу Солнцево-Бутово-Варшавское шоссе. ТРАНСПОРТНАЯ ДОСТУПНОСТЬ: - 7 мин. на личном автомобиле или 10 мин. на автобусе до станции метро "Филатов Луг" - 10 мин. на автомобиле или 20 мин. на автобусе до станции метро "Рассказовка" или "Саларьево" ВНУТРЕННЯЯ ИНФРАСТРУКТУРА И БЛАГОУСТРОЙСТВО: Дома 11 квартала граничат с Ульяновским лесопарком. В концепции благоустройства воссоздано ощущение естественного взрослого озеленения. Вся территория 11 квартала разделена на 2 типа: - приватное дворовое пространство с детскими игровыми площадками. Дворы свободны от машин. - прогулочные маршруты с зонами отдыха. Прогулочный маршрут объединяет дома 11 квартала в единое пространство, за счёт оригинальной геопластики создаётся уникальный разноуровневый ландшафтный узор. В каждом из домов предусмотрены кладовые помещения на -1 и жилых этажах, а также коммерческие помещения на 1 этаже. На территории 11 квартала запланировано строительство 2 многоуровневых паркингов. АВТОРСКИЙ ДИЗАЙН: Входные группы выполнены по авторскому дизайну, оснащены системой "тёплый пол". В каждой входной группе будет располагаться комфортабельная зона ожидания с мягким диваном и кашпо с крупными растениями. При входе предусмотрено помещение для хранения колясок, на -1 этаже располагается велопарковка.

О квартире

Тип жилья

Новостройка

Общая площадь

59,6 м²

Площадь кухни

20,3 м²

Высота потолков

2,7 м

Санузел

1 совмещенный, 1 раздельный

Вид из окон

Во двор

Отделка

Предчистовая

О доме

Количество лифтов

1 пассажирский, 1 грузовой

Тип дома

Монолитный

Парковка

Наземная

Понравилась квартира — узнайте о ней больше

Застройщик ответит на все вопросы

Отделка квартиры

Предчистовая — остаётся установить сантехнику, розетки, двери и навести красоту: поклеить обои и уложить на пол покрытие

Варианты отделки в ЖК

  • Чистовая
  • Без отделки
  • Предчистовая

О ЖК «Город-парк Первый Московский»

  • Сдача комплекса
    Сдача в 2026—2030, есть сданные
  • Застройщик
    Абсолют Недвижимость
  • Класс
    Комфорт
  • Тип дома
    Панельный, монолитный
  • Парковка
    Отдельная многоуровневая, гостевая
  • Отделка
    Без отделки, предчистовая, чистовая
  • Тип комплекса
    Жилой комплекс
Похоже на то, что вы ищете?

Особенности жилого комплекса

  • Отделка

  • Внутренний двор

  • Парки

  • Входная группа

Подробнее о жилом комплексе

Акции в ЖК «Город-парк Первый Московский»

Узнайте про персональные условия и дополнительные скидки при покупке квартиры у застройщика
logo

Квартиры со скидкой до 6,1 млн руб.

logo

Скидки до 15% на квартиры с ключами

logo

Скидки до 12%

Рассрочка 0%

Материнский капитал

Трейд-ин Авто

Бронирование квартиры

Ипотечный калькулятор
  • Базовая
  • Семейная
  • ИТ-ипотека
  • 20%
  • 30%
  • 40%
  • 50%
лет
  • 10 лет
  • 20 лет
  • 30 лет
Загружаем предложения от застройщика и банков
Корпус проверен наш.дом.рф
Обновлено 2 апреля 2026
  • Нет в реестре проблемных объектов
  • Застройщик не банкрот

Ещё квартиры в жилом комплексе

401 квартира в продаже · Сдача в 2026—2030, есть сданные
ЗастройщикАбсолют Недвижимость
Год основания: 1990
Строится: 18 домов в 3 ЖК
20 620 874 ₽
Цена за метр
345 988 ₽/м²
Условия сделки
предварительный договор