


От года, комм. платежи включены (без счётчиков), комиссия 50%, залог 90 000 ₽
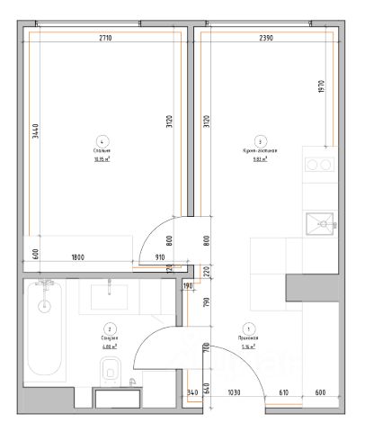
Стильная 2-х комнатная квартира в престижном районе Москвы. В квартире выполнен качественный ремонт. Планировкой предусмотрено: Кухня-гостиная с балконом, спальня, совмещенный санузел, коридор. Квартира полностью меблирована и оснащена техникой от ведущих производителей. Техника: кондиционер, посудомоечная машина, стиральная машина, духовой шкаф, холодильник, телевизор. Много мест для хранения вещей. Окна выходят во двор. Насыщенная инфраструктура района. Прекрасная транспортная доступность: до метро 1905 года 6 минут пешком, до метро Беговая 10 минут пешком, удобный выезд на ТТК. Строго без животных! Аренда жилья на улице Большая Ордынка в Москве.

















