От года, комм. платежи включены (без счётчиков), без комиссии, залог 160 000 ₽
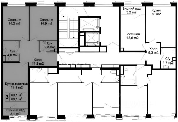
ID 31373. Великолепная 3-комнатная квартира в новом жилом комплексе рядом с парком Коломенское. Современный дизайнерский ремонт с использованием высококачественных материалов. Полная комплектация мебелью и бытовой техникой. Установлены кондиционеры, стиральная машина, теплые полы, высокоскоростной интернет, имеется сейф. Общая площадь 120 кв. м. Планировка: студия с полностью укомплектованной кухней, 2 спальни, утепленная застекленная лоджия, большая ванная комната и гостевой туалет. Окна выходят на 2 стороны. Комплекс расположен в пешей доступности от новых станций метро "Кленовый бульвар" и "Нагатинский затон". В доме прекрасная входная группа, огороженная территория дома, круглосуточная охрана, въезд по пропускам, видеонаблюдение. Внутренний двор благоустроен, детская площадка. Подземная парковка и гостевая парковка на охраняемой территории дома входят в стоимость. В ближайшем доступе: кафе и рестораны на набережной, парк Коломенское и прогулочная зона на набережной.. Для длительного проживания. Можно с ребенком старше 10-ти лет. Без животных! Please feel free to contact Intermark Real Estate to get detailed information or to set up a viewing! 24/7 help desk service with English-speaking operators В квартире: С мебелью, М/место в подземном паркинге, Парковка, Посудомоечная машина, Стиральная машина, Сушильная машина, Бойлер, Джакузи, Душевая кабина, Теплые полы, Спутниковое/кабельное телевидение, Кондиционер, Видеонаблюдение, Охрана, Интернет, Балкон, Можно с детьми, Европланировка, Ванна, Консьерж, Кондиционер, Лифт, Кухонная мебель, Окна на улицу, Окна во двор













































































