


492 490 ₽/м²
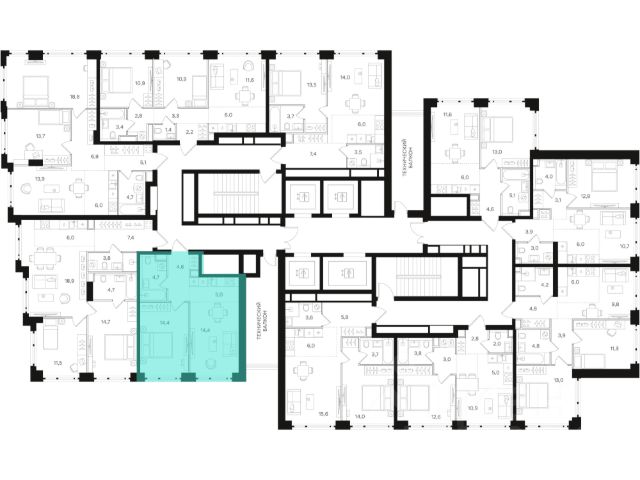
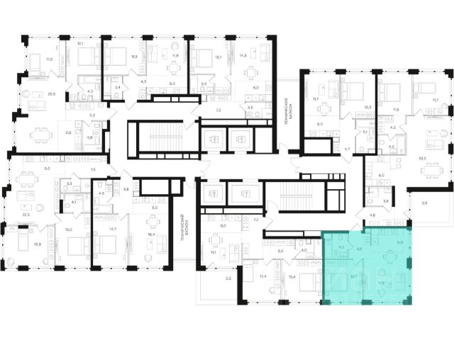
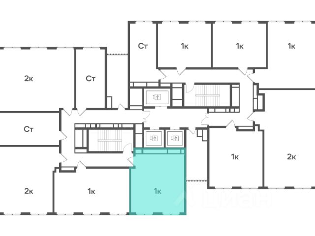
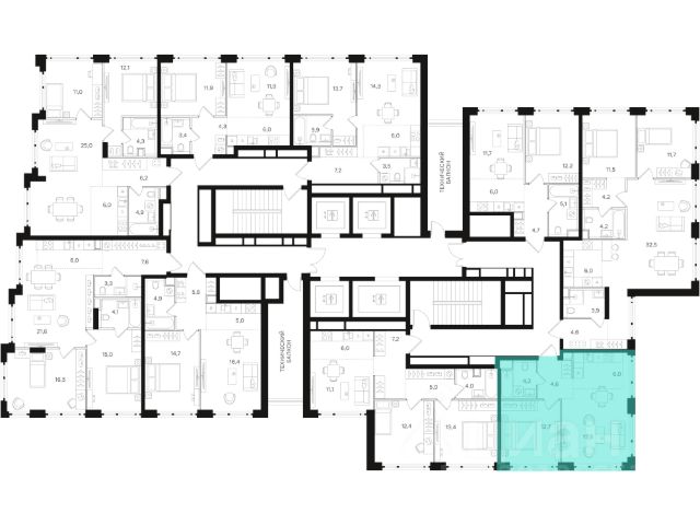
Предложения месяца от девелопера: - Скидка при полной оплате - 15% - Ипотека от 3,5% на весь срок или 0,11% на первый год - Рассрочка без процентов - Trade-in с проживанием на время строительства дома Просторная 1-комнатная квартира. Общая площадь - 39.7 м2 на 15 этаже, без отделки. Эргономичные планировки, мастер-спальни, угловые комнаты с окнами на две стороны света и террасы с завораживающими видами на панораму города и национальный парк "Лосиный остров". НАЗАРЕ' - шесть домов бизнес-класса высотой 24-43 этажа. Проект расположен в окружении трёх парков: "Лосиный остров", "Сокольники" и "Измайловский". Территория НАЗАРЕ' приватный двор-сад с авторским благоустройством. Здесь появятся прогулочные дорожки, зоны для тихого отдыха и медитации, спортивные и игровые площадки для детей разных возрастов, коворкинг на свежем воздухе. В продаже видовые квартиры с увеличенным количеством широкоформатных окон, мастер-спальнями, кухнями-гостиными, открытыми террасами, двумя гардеробными и просторными кладовыми. Форматы - от светлых студий 21,5 м2 до семейных 4-комнатных 125, 5 м2. Часть лотов - с предчистовой отделкой. Транспортная доступность: - Метро и МЦК "Бульвар Рокоссовского" - 2 мин. пешком - Северо-Восточная хорда - 3 мин. на автомобиле - Третье транспортное кольцо - 15 мин. на автомобиле - Садовое кольцо - 18 мин. на автомобиле - Трамвай до центра города - Удобные выезды на Открытое шоссе, Большую Черкизовскую улицу и СВХ Инфраструктура: • Район Богородское: детские сады, творческие центры, престижные школы, ведущие московские вузы, медицинские центры, магазины и спортивные клубы. • Планируется открытие собственного торгово-развлекательного центра с акцентом на шопинг и досуг в шаговой доступности. Здесь появятся различные ресторанные концепции, фитнес-клуб и детское игровое пространство. • На первых этажах домов откроются кафе, пекарни, магазины и службы сервиса. • Собственный детский сад на 75 мест • Все для жизни и отдыха резидентов: коворкинг, лаунж-зоны, общественная гостиная с мягкой мебелью, библиотеки и кафе, дополнят инфраструктуру - фитнес-зал для групповых и индивидуальных тренировок, игровое пространство для детей с выходом во двор и т.д. • Двухуровневый подземный паркинг с келлерами для хранения сезонных вещей, а также местами для велосипедов Купить 1-комнатную квартиру с отделкой от застройщика в районе Богородское в Москве.





























































































































































