


938 000 ₽/м²
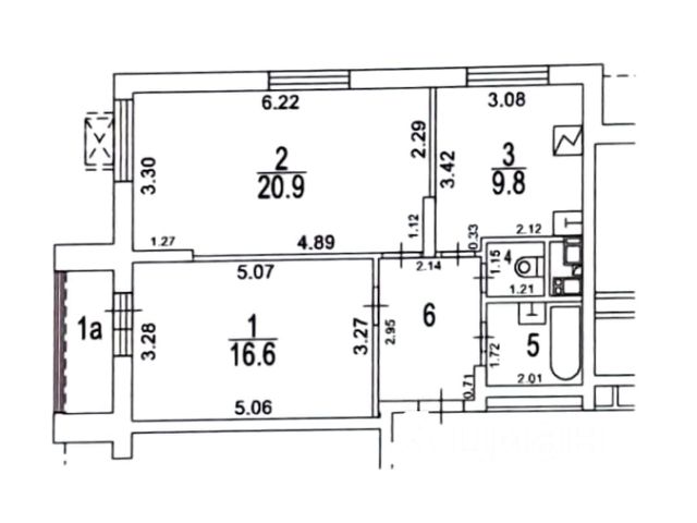
Двухкомнатная велнес-резиденция площадью 64.4 кв. м. на 6 этаже с видом на двор в доме премиум-класса Springs. В квартире выполнена чистовая дизайнерская отделка. Резиденция наполнена светом и воздухом, благодаря панорамному остеклению и высоким потолкам. На первом этаже дома расположены: - фитнес-центр с бассейном; - СПА с хаммамом; - бьюти-зона с массажным кабинетом. - ресторан. Все сервисы доступны исключительно для резидентов. Всего в 2 минутах ходьбы от дома находится заповедный парк Фили прекрасное место для спокойного и активного отдыха. Зеленый массив, набережная, велотропы и открытые зоны для йоги, а также шахматный клуб, летний кинотеатр, множество беседок и кофеен. До делового комплекса Москва-Сити всего 16 минут, а центр — в 14 минутах езды по Кутузовскому проспекту. Удобный выезд к Рублёвскому шоссе — отличная возможность на выходных сбежать с детьми за город, потратив на дорогу меньше получаса. Концепция благоустройства Springs, разработанная студией Wowhaus, воплощает идею взаимного проникновения парка и озеленения внутренней территории: естественная растительность, дополненная акцентами из цветников, плавно вступает во двор. В сочетании с бионической архитектурой дом является органичным продолжением природного ландшафта парка. Элитное жилье - 2-комнатная квартира в районе Фили-Давыдково в Москве.




























































































