


359 417 ₽/м²
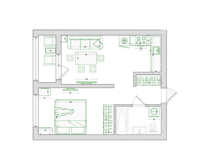
В жилом комплексе, расположенном по соседству с ландшафтным парком "Южное Бутово", продается 2-комнатная квартира площадью 52.50 кв. м. с отделкой. Квартира расположена на 17 этаже 1 корпуса в жилом квартале комфорт-класса "Новые Смыслы от UNIKEY" (ГК Unikey/Юникей). Доступная и удобная локация: - 10 минут ходьбы до станции метро "Потапово". - 25 минут ходьбы до станции метро "Бунинская аллея". - 15 минут на авто до Калужского шоссе. - 20 минут на авто до МКАД. - 30 минут на машине до аэропортов "Внуково" и "Остафьево". Продуманный архитектурный проект: - Разноуровневые секции с эстетичные башнями и контрастными цветовыми сочетаниями, напоминающими башни в Сити. - Сказочные виды из окон на современный район столицы. - Авторские планировки с потолками в 3 метра, просторными кухнями-гостиными и мастер-спальнями. - Комфортные бесплатные общественные пространства. - Подземный паркинг с прямым доступом на лифте. - Настоящий лес с живописными пейзажами и прудом прямо во дворе. Расположение Комплекс "Новые Смыслы от UNIKEY" расположится в благоприятном районе Новой Москвы - Коммунарка. Зеленое окружение, богатая инфраструктура развивающегося района - все это сформирует особое пространство для комфортной жизни, наполненной смыслом. 10 минут на велосипеде - и вы в ландшафтном парке "Южное Бутово" или сквере у Потаповских прудов. Чуть дальше расположен Бутовский лесопарк. В окружении "Новых Смыслов" вы найдете все необходимые социальные объекты. В двух шагах от дома находится 5 школ, более десятка детских садов, секции для занятий малышей и подростков, частные клиники, супермаркеты, рестораны, студии красоты и фитнес-центры. За 12 минут на авто вы доберетесь до ледовой арены, комплекса "Спорт Станция" и спа-центра "Termoland". Внутренняя инфраструктура Для жителей "Новых Смыслов" будут созданы бесплатные общественные пространства: - Деловая гостиная с эстетичным коворкингом и переговорными. - Гостиная для души и тела, включающая фитнес-зону с тренажерами и пространства для стретчинга, йоги и медитаций. - Гостиная детства, где дети будут играть и развиваться под присмотром тьютора. - Кино-гостиная - кинотеатр на крыше одного из домов, предлагающий разнообразную программу. - Прачечная, работающая только для жильцов. Вместе с корпусами комплекса на территории запланировано строительство детского сада. На первых этажах корпусов откроются кофейни, пекарни, сервисы быта и пункты доставки. Благоустройство Чтобы отдохнуть от суеты города, достаточно выйти во двор: здесь раскинулся настоящий лес с живописными пейзажами. В тени деревьев жителей ждут пруд с мостиком и беседкой на берегу, тихие прогулочные аллеи, спортивная площадка и зоны для занятий йогой и бадминтоном на свежем воздухе. Юных жителей порадуют современные детские площадки, жукарий и специальное пространство для подвижных игр. Безопасность на территории гарантирована: двор огорожен от машин и оснащен камерами видеонаблюдения.



















































































