


274 090 ₽/м²
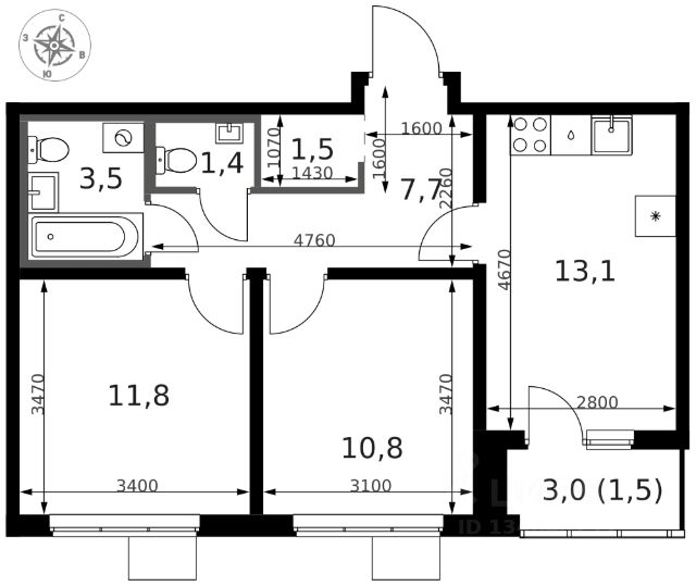
Пешая доступность от метро и московская прописка! Продается уютная 2-комн. квартира площадью 64,8 кв.м на 5 этаже 17 этажного жилого комплекса бизнес-класса Foreville от 3S Group. Общая площадь: 64,8 кв.м., жилая: 39,8 кв.м., площадь кухни-гостиной: 22,3 кв.м., высота потолков: 2,72 м., окна выходят во двор и на улицу. [1] Квартира предлагается без отделки, что идеально подходит для воплощения собственного дизайнерского решения. Также доступна опция предчистовой отделки, стоимость которой включается в общую цену квартиры. О проекте: Пространство Комплекс располагает крупнейшим приватным двор-парком в Новой Москве площадью 1,2 Га, предлагая жителям огромное пространство для отдыха, спорта и игр на свежем воздухе. Природный ландшафт Внутренний лесопарк с более чем 183 взрослыми деревьями и 10 320 цветущими кустарниками создает уникальную природную атмосферу для каждого времени года. Игровые и спортивные зоны Обширные площадки с безопасным покрытием, специализированные зоны для детей разных возрастных групп и взрослых, включая воркаут и настольный теннис, способствуют активному и здоровому образу жизни. Экологичность и долговечность Использование натуральных материалов, таких как лиственница, и крупноформатной бетонной плитки для покрытия, подчеркивает стремление проекта к экологичности и устойчивости. Безопасность и уединение Внутренний двор без машин обеспечивает безопасность для детей и спокойствие для взрослых. Территория огорожена и находится под круглосуточным видеонаблюдением. Сохранение времени Благодаря превосходной транспортной доступности и близости к новой станции метро Корниловская, Foreville позволяет жителям экономить время для семьи и отдыха на природе, минимизируя необходимость длительных поездок. Foreville не просто жилье, а целая экосистема для комфортной и гармоничной жизни на свежем воздухе, совмещая преимущества городской инфраструктуры и непосредственную близость к природе.



































































































