234 911 ₽/м²
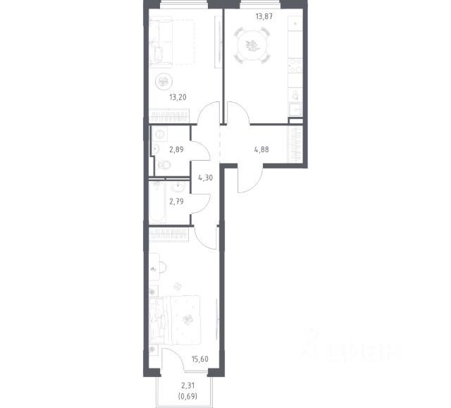
Строим кварталы для жизни с заботой о будущем. Предлагается 2-комнатная квартира комфорт-класса площадью 50.22 кв.м в корпусе 6 на 3-м этаже, в жилом комплексе "Мытищи Парк". Квартиру в комплексе - на выбор: может быть как с отделкой, так и без. В случае с готовой отделкой уложат напольное покрытие, выровняют стены и поклеят обои в нейтральных тонах, установят потолки, выполнят разводку коммуникаций и подключат сантехнику. Вам также не придётся после заселения менять окна, межкомнатные и входные двери - их качество будет на высоте. Помимо базовой отделки, вы можете дополнительно выбрать улучшенную версию. В ней используются износостойкие материалы, ударопрочные плинтуса, ламинат с фаской - все для долговечного использования. Приобрести квартиру возможно по специальным акциям от застройщика, с текущими условиями акций можно ознакомиться в блоке "Акций". Цена динамическая и может отличаться, уточняйте актуальность у застройщика. ЖК "Мытищи Парк" - это надежные и долговечные монолитные корпуса. При проектировании домов и территории застройщик учел потребности жильцов всех возрастов - молодых пар, семей с детьми и пожилых людей. ЖК "Мытищи Парк" расположен в Московской области и с двух сторон окружен Пироговским лесопарком.


















































































