


550 300 ₽/м²
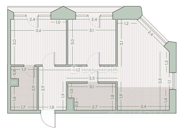
О квартире Продаётся двухкомнатная квартира общей площадью 54.50 кв. м. без отделки. Квартира на 22 этаже корпуса 5.5 в жилом комплексе бизнес-класса "Среда на Лобачевского". До метро "Аминьевская" 7 минут пешком. Развитый район с удобным выездом "Среда на Лобачевского" строится рядом с Аминьевским и Очаковским шоссе, отсюда можно доехать до МКАД или Ленинского проспекта за 10 минут. В районе уже есть всё для жизни: рестораны, кофейни, торговые центры, поликлиники и спортивные комплексы, школы и сады, бульвары и парки. - 7 минут ходьбы до станции метро "Аминьевская". - 15 минут пешком до станции МЦД-4 "Очаково". - 8-15 минут на машине до Кутузовского проспекта и ТТК. - До 15 минут езды до заказников "Долина реки Сетунь" и "Воробьёвы горы". О жилом комплексе "Среда на Лобачевского" - новый квартал в парадном стиле старой Москвы. Благодаря разноэтажной застройке во дворе комплекса будет много света и воздуха, без ощущения замкнутого пространства. Во дворе лаунж-зоны для медитации и работы, площадки для игр и кинопоказов, а на первых этажах - кофейни и магазины. Особенности - Высота потолков до 3,24 метра. - Панорамное остекление в пол. - Квартиры с террасами, мастер-спальнями и сквозными планировками. - Дизайнерские гранд-лобби в каждом корпусе. - Ландшафтный парк с зонами отдыха у воды. - Коворкинг на свежем воздухе. - Локации для спорта, игр и приватного отдыха. - Соседский бульвар с площадкой для подростков. - Подземный паркинг с двумя въездами. - Система бесключевого доступа. - Стрит-ритейл на первых этажах.
























































































































































