


464 935 ₽/м²
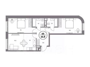
В динамично развивающемся районе Москвы, всего в 300 метрах от метро и в пешей близости от нового городского порта с протяженной набережной 13 км, свободной от автомобилей, продается 3-комнатная квартира площадью 59.90 м². без отделки. Квартира находится в корпусе жилого комплекса бизнес-класса "Адмирал", расположенного по адресу г. Москва, ул. Шоссейная, 4Д. (Застройщик - "Галс Девелопмент"). Новый амбициозный проект "Адмирал" станет частью одного из самых перспективных районов будущего - "Сити-2". В пешей доступности от современных башен Вас ждут живописные Люблинские пруды, 2 усадьбы с уникальной историей и уютный парк "Печатники" у Перервинского плёса. Район имеет отличную транспортную доступность: • 300 метров до станции метро "Печатники"; • Удобная пересадка на БКЛ и станцию МЦД-2; • 10 минут на машине до ТТК; • 15 минут до Садового кольца. Архитектура корпусов отличается динамичностью облика благодаря переменной этажности: высокие башни сочетаются с домами средней этажности. Изящным украшением становятся арочные витражи. Интеллигентный и современный стиль "Адмирала" продолжается в гранд-лобби: пастельные оттенки интерьера и фактурные элементы декора создают атмосферу безмятежного отдыха, особое ощущение простора дарят высокие потолки до 4 м и витражные окна. В домах предусмотрено от трех до шести скоростных лифтов, каждый из них спускается на любой этаж подземного паркинга и обладает удобными сенсорными панелями управления и низким уровнем шума. Благоустроенный двор площадью 5000 кв.м. украсят десятки видов гипоаллергенных растений. Здесь можно совершить приятный променад, по пути заглядывая за свежезаваренным кофе, уединиться за ноутбуком в комфортном коворкинге, занять ребенка играми в двухъярусном плейхабе или помедитировать на специальной площадке для йоги. Мягкий свет декоративных фонарей подчеркнет живописность местности, а чувство безопасности гарантируют круглосуточные системы видеонаблюдения. Дополнительные преимущества: • Высокие потолки от 2,9 до 3,25 м; • Бизнес-центр, школа и детский сад прямо на территории дома; • Подземный двухуровневый паркинг на 1955 машино-мест; • Кладовые помещения в тёплом контуре на 2м этаже; • Стрит-ритейл на первых этажах.























































































































































