


286 488 ₽/м²
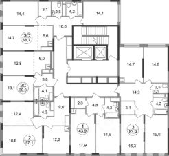
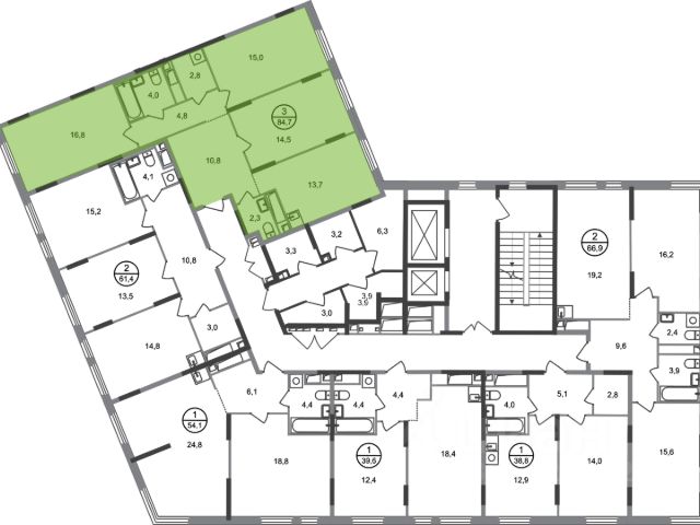
Продается трехкомнатная квартира без отделки в городе-парке "Переделкино Ближнее". Общая площадь квартиры - 64,8 кв. м, этаж 2 из 17. Срок сдачи - 1 квартал 2028 года. Тип дома - монолитный. ТОЛЬКО ДО 31 МАЯ выгодные условия на приобретение квартиры в ипотеку или рассрочку. Звоните - и мы подберем оптимальное предложение под ваш запрос! Корпус расположен в 13 квартале строительства и состоит из 8 секций с переменной этажностью 12-17 этажей. Все секции без отделки. Около 13 квартала запланировано строительство многоуровневого паркинга на 300 м/мест. 13 квартал имеет уникальное расположение и находится непосредственно на берегу Федосьинского пруда, который является сердцем города-парка "Переделкино Ближнее". Город-парк "Переделкино Ближнее" расположен в 8 км от МКАД по Боровскому шоссе. ТРАНСПОРТНАЯ ДОСТУПНОСТЬ: - 15 минут пешком до станции МЦД-4 "Мичуринец" - 25 минут пешком до станции метро "Рассказовка" Солнцевской линии - 30 минут до центра Москвы - 2026 г. - открытие трассы Солнцево-Бутово-Варшавское шоссе РАЗВИТАЯ СОЦИАЛЬНАЯ ИНФРАСТРУКТУРА: - 7 детских садов, 3 школы - банки, продуктовые магазины, аптеки, фитнес центры, салоны красоты и пр БЛАГОУСТРОЙСТВО: - дворы без машин - игровые зоны и развивающие детские площадки - зоны для созерцательного и медитативного отдыха - зоны для занятий спортом ОСОБЕННОСТИ АРХИТЕКТУРЫ: - высокие потолки от 3,03 м - безбарьерные входные группы - колясочные в каждой входной группе - кладовые помещения расположены на -1 этаже каждой секции - в каждой секции 2 лифта: 1 пассажирский, 1 грузовой - на фасаде предусмотрены корзины для установки кондиционеров АВТОРСКИЙ ДИЗАЙН: Входные группы выполнены по авторскому дизайну, благодаря панорамному остеклению наполнены естественным светом. В каждой входной группе будет располагаться комфортабельная зона ожидания с возможностью зарядить электронные устройства, почтовые ящики, колясочная, акцентные пуфы и столик.





























































































































































