Первичная продажа
сдача ГК: 4 кв. 2026 года
Царицыно
4 минуты на транспорте
24 110 491 ₽
339 584 ₽/м²
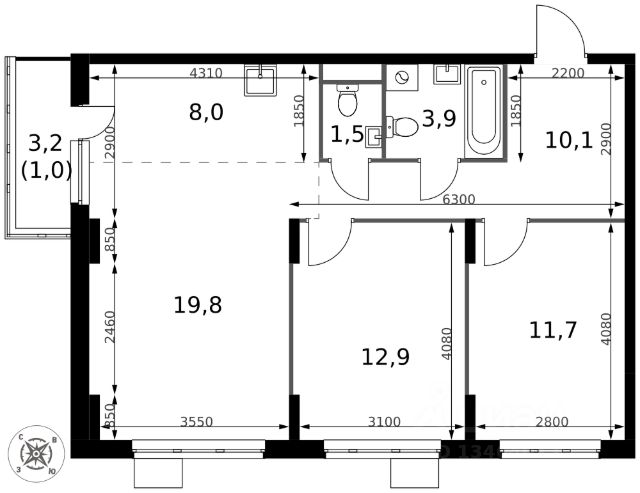
Продается трехкомнатная квартира 250 в новостройке ЖК "Русич Кантемировский" по адресу Москва, ЮАО, Царицыно, Кавказский бульвар, вл. 51/2, корп. 2. Общая площадь квартиры - 71.00 кв. м., этаж 16 из 26, секция 2. Тип проекта, по которому построен дом - монолит, компания-застройщик - Концерн "Русич". Стоимость квартиры - Р. Срок сдачи - 4 квартал 2026. Более подробная информация по телефону.
Современный жилой комплекс класса бизнес-лайт "РУСИЧ Кантемировский" удачно расположен в обжитом районе Царицыно всего в 15 минутах пешком до двух станций метро. Удобное расположение рядом с трассой ЮВХ и Варшавским шоссе позволяет добраться до МКАД всего за 17 минут, а развитая инфраструктура района вместе с комплексным подходом к наполнению жилого квартала делает это место идеальным для жизни.
Проект включает в себя шесть элегантных корпусов, высота которых варьируется от 17 до 32 этажей. Каждый фасад - это результат авторской архитектурной мысли, а дизайнерские лобби встречают вас атмосферой уюта и стиля. Премиальные отделочные материалы и передовые инженерные решения подчеркивают высокое качество жизни в этом комплексе.
Концепция "двор без машин" создает безопасную и спокойную атмосферу: внутренние пространства огорожены и оснащены видеонаблюдением, а для автолюбителей предусмотрен современный паркинг на 291 машино-место. Дворы комплекса обещают стать настоящим оазисом: здесь появятся живописные прогулочные аллеи, уютные зоны для пикников и разнообразные спортивные и детские площадки. Центральная площадь с фонтаном, перголами и цветочными композициями станет излюбленным местом для встреч и отдыха.
Еще одним значительным преимуществом является собственная школа на 900 мест и два детских сада, вмещающие 400 малышей. Вам не придется тратить много времени на покупки - рядом уже работают супермаркеты, рестораны и спортивные клубы, предлагая все необходимое для комфортной жизни.
Жилой комплекс "РУСИЧ Кантемировский" гармонично сочетает в себе преимущества городской жизни и природную тишину. Всего в нескольких шагах от вашего нового дома раскинулся живописный заповедник "Царицыно", а также парки "Сосенки" и "Аршиновский", где можно насладиться свежим воздухом и спокойствием природы.























































































