


634 716 ₽/м²
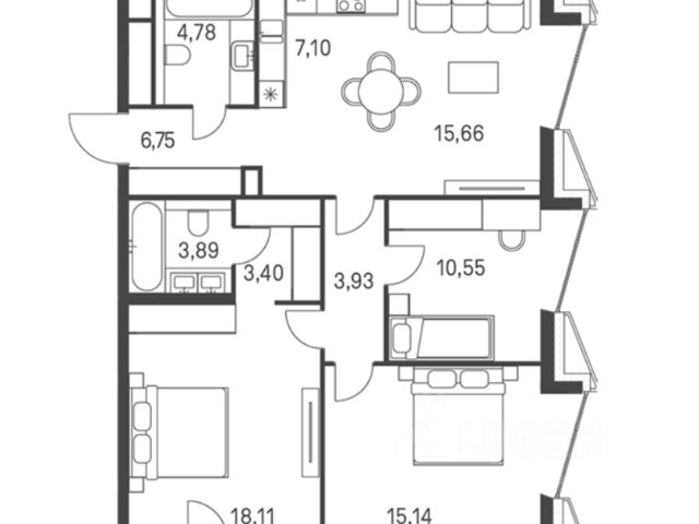
Прямая продажа от застройщика — 3-комнатная квартира общей площадью 74.4 м², без отделки. Квартира 236 расположена на 6-м этаже 13-этажного дома, секция 9. Жилой проект премиум-класса DD:OO:MM Дом на Часовой от девелопера Dar расположен в 12 минутах пешком от метро Аэропорт. Дом находится внутри района и не граничит с шумными магистралями. До Ленинградского проспекта 4 минуты на авто, прямой выезд на ТТК — в 10 минутах. Проект состоит из семи пятиэтажных секций и двух доминант высотой 13 и 22 этажа. Неоклассическая архитектура разработана бюро СПИЧ — одним из крупнейших и наиболее успешных архитектурных бюро в России и за рубежом с реализованными проектами в Германии, Италии и ОАЭ. Высота потолков — от 3,6 метра, в квартирах установлены панорамные окна высотой 2,4 метра. На площадке расположены от 2 до 5 квартир, что обеспечивает высокий уровень приватности. В Доме на Часовой появится подземный паркинг, рассчитанный на 149 мест, ещё 4 машино-места будут размещены на территории. На подземном этаже также появятся 69 кладовых. В гранд-лобби разместится культурное пространство: библиотека с читальным залом, разработанная кураторами книжного магазина "Подписные издания", и музыкальная комната с коллекцией виниловых пластинок и проигрывателями. Здесь же появится детская зона, где родители смогут провести время с детьми за книгой, и коворкинг со стеклянными перегородками для сосредоточенной работы. Идея двора вдохновлена античным идеалом гармонии природы и человека. С-образная форма Дома позволила создать камерный внутренний двор, в котором появятся большая аллея, места спокойного отдыха — уединённые и для компаний, навесы для отдыха и работы раскидистые ивы и низкие кустарники. "Активные" площадки — детская и спортивная — вынесены за периметр дома, но также находятся на огражденной территории. Детская площадка выполнена в монохромных оттенках и подойдёт для разных возрастов. На спортивной площадке появятся тренажёры, брусья и место для йоги.


































































































