180 375 ₽/м²
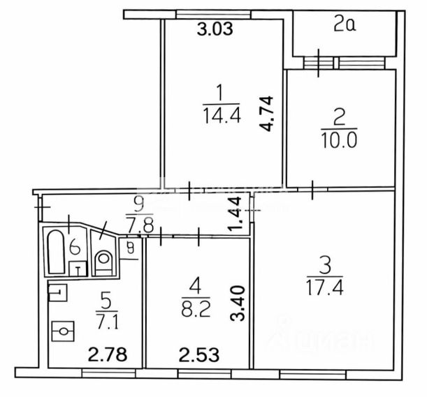
Код объекта: 1952756. Продаётся 4-комнатная квартира 69 м² с мебелью, балконом и развитой инфраструктурой — г. Реутов, ул. Лесная, 8 Продаётся просторная 4комнатная квартира 69 м² на 9м этаже 9этажного дома — с отличной планировкой, мебелью и готовностью к проживанию. Дом расположен в тихом зелёном районе с развитой инфраструктурой и удобным транспортным сообщением с Москвой. Описание квартиры: Общая площадь: 69 м² Этаж: 9 из 9, панельный дом, лифт, чистый подъезд Комнат: 4 комнаты Балкон из комнаты — светлая зона отдыха Санузел раздельный Окна выходят на две стороны — квартира светлая и тёплая Продаётся с мебелью — шкафы, столы, кровати, кухня. Чистая юридическая история: 1 взрослый собственник, более 5 лет в собственности, без долгов. Инфраструктура: В шаговой доступности: школы, детские сады, супермаркеты, аптеки, салоны, кафе 5 минут до остановок наземного транспорта, 10 минут до станции МЦД4 "Реутово" Удобный выезд на МКАД и Новокосинское шоссе Поблизости — парки, спорткомплексы, места для прогулок и отдыха Почему это выгодно: Идеально для большой семьи — 4 комнаты Отличный вариант для инвестиций: можно сдавать помесячно или по комнатам Готовое решение: заехал и живи — ремонт, мебель уже есть Квартира в "чистой" продаже — можно сразу выходить на сделку Реутов — один из самых удобных и безопасных городов Подмосковья. С каждым годом район растёт в цене, а спрос на квартиры с готовым ремонтом и мебелью только увеличивается. Работать с нами выгодно и надёжно: в МИЭЛЬ самый высокий уровень проверки объектов финансовая гарантия до 25 млн. руб. индивидуальное сопровождение по ипотеке во всех банках Подробная информация у агента МИЭЛЬ.















































































