


590 137 ₽/м²
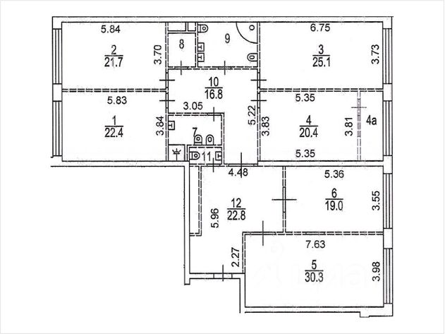
Id 61895. Квартира с видом на Останкино — семейный формат, 4 комнаты + кабинет. Площадь по ЕГРН: 123,7 м² Кухня-гостиная: 24,1 м² — полноценная зона для семьи и приема гостей. Комнаты: 14,9 / 15,1 / 14,7 м² + кабинет 11,5 м² (можно как 4-ю спальню/детскую). Гардеробная: 2,2 м². Санузлы: 3 (2 совмещённых + 1 раздельный) — комфортно для семьи. Балкон: 1,2 м². Планировка и функциональность Квартира грамотно разделена на общественную и приватную зоны: кухня-гостиная отдельно от спален, есть кабинет/гостевая, места хранения (гардеробная). Формат, который ценят покупатели бизнес-класса: простор, логика, удобство на каждый день. Дом и территория Современный жилой комплекс с закрытой территорией, охраной и видеонаблюдением, консьерж-сервисом. Во дворе — спокойная среда без лишнего трафика. Локация и транспорт Метро Останкино — 1 минута пешком. Удобный выезд, быстрый доступ к центру. Документы и сделка • 1 взрослый собственник • Без обременений • Полная сумма в ДКП • Свободная продажа • Быстрый выход на сделку Покажу квартиру в удобное время. Звоните — отвечу на вопросы, отправлю планировку и видео/доп. фото по запросу. Продам 5-комнатную квартиру, подойдёт для элитной жизни на улице Академика Королева в Москве.







































































