КВАРТИРА ПОД ЧИСТОВУЮ ОТДЕЛКУ (все работы перечислены ниже)!!!
Видовая трехкомнатная квартира, 77,1 кв.м. в ЖК Бизнес-класса "Большая семерка" с продуманной планировкой! Наши преимущества: ОТДЕЛКА, ВЫИГРЫШНОЕ РАСПОЛОЖЕНИЕ в доме: вид на набережную и город; отсутствие обременений и долгов у собственника!
Сделано на данном этапе 90% от запланированных черновых работ:
- произведены демонтажные работы - установлены стеклопакеты на лоджии
- построены межкомнатные стены и перегородки санузлов
- отштукатурены и выровнены стены - выровнены потолки в комнатах
- утеплены потолки и стены лоджии - разведены трубы отопления по коллекторной схеме
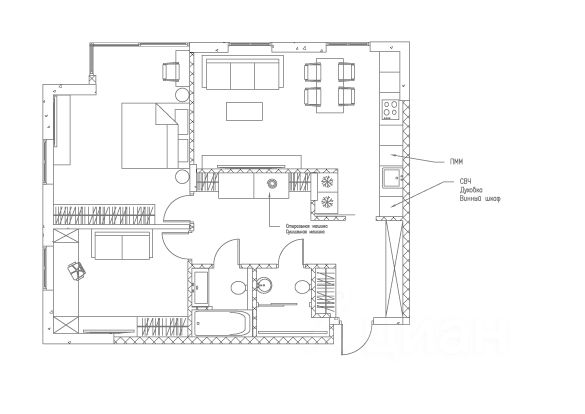
- установлена ванна
- произведена разводка труб водоснабжения и канализации
- сделана разводка проводов электрики с установкой подрозетников
- установлены подоконники и откосы из кварца
- проведены трассы для кондиционеров.
Все работы производились профессионалами, с использованием качественных материалов, под инженерным надзором. Делали на совесть, для себя. Дадим все рекомендации по дальнейшему проведению работ, дизайну, можем помочь в доведении ремонта до завершения.
Квартира расположена на 5-м этаже, 17-ти этажного монолитного дома, высокие потолки 3 м, удачное расположение, а именно максимальное удаление корпуса от трамвайных путей и прохожих, с панорамным видом на город, реку Яуза и Парк Сокольники. Покупали для себя, выбирали тщательно: расположение корпуса, вид из окна, этаж, инфраструктуру района. Уже начали выполнять отделочные работы в соответствии с планировкой, в формате кухня-гостиная, плюс две спальни. В квартире предусмотрено два полноценных санузла, один с ванной, второй с душевой кабиной. Площадь 77,1 м2 включая присоединенную лоджию.
ЖИЛОЙ КОМПЛЕКС "БОЛЬШАЯ СЕМЕРКА":
- 7 монолитных корпусов в едином стиле
- Позиционирование - Бизнес-класс;
- Концепция "двор без машин";
- Благоустроенная территория с детскими и спортивными площадками;
- Подземный паркинг с прямым доступом на лифте.
ИНФРАСТРУКТУРА:
- Свой детский садик на территории ЖК;
- Кафе, рестораны, магазины, ПВ маркетплейсов, салон красоты, автомойка — непосредственно на территории ЖК;
- В непосредственной близости от ЖК: художественная школа им. Врубеля, школы и детские сады, поликлиники, МФЦ, спорткомплекс "Спартаковец", Стадион "Локомотив", фитнес-центры, супермаркеты;
- Парки: Лосиный остров, Сокольники, Черкизово — в пешей доступности.
ТРАНСПОРТНАЯ ДОСТУПНОСТЬ:
- Метро Преображенская площадь — 4 минуты на транспорте;
- Метро Бульвар Рокоссовского — 6 минут на транспорте;
- Удобный выезд на основные автомобильные магистрали.
ПРАВОУСТАНАВЛИВАЮЩИЕ ДОКУМЕНТЫ:
- Один взрослый собственник.
- Договор долевого участия от 2021 года.
- Отсутствие долгов и обременений.
- Свободная продажа, быстрый выход на сделку.
- Имеется машино-место, 14 кв. м. на -1 этаже, недалеко от въезда в паркинг, что очень удобно.
- Покупателю бесплатное сопровождение сделки.
Пожалуйста звоните и записывайтесь на показ!
Арт. 134