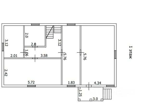
Дом построен для себя из качественных материалов для круглогодичного проживания. Фундамент монолитная плита. стены и перегородки в доме из пеноблока. Крыша утеплена, вода, электричество, септик Тверь на 5 человек. За основу брали проект "Альпиец 3", расширили площадь, допроектировали закрытую веранду с выходом из дома. Дом без внешней отделки с частично внутренней отделкой. 1-й этаж: спальня, большая гостиная, кухня, большой Су, прихожая, котельная, выход на веранду 30 м. 2-й этаж: 3 спальни, два Су. Все помещения очень просторные. На участке: фундамент под гараж, бревенчатая баня, пруд с естественным источником. Участок расположен в конце тупиковой улицы, тишина, покой и инфраструктура города в 10 минутах ходьбы. До станции Апрелевка 20 минут спокойным шагом. МЦД 4, маршрутка, автобусы. Рядом Сбербанк, магазины: магнит, Дикси, красное белое, ВБ, озон, Яндекс Маркет, кафе. Продаем по сложившимся жизненным обстоятельствам. Дом очень хороший, теплый и душевный. Идеален для тех, кто ищет уют и спокойствие недалеко от Москвы. Соседи живут круглогодично. Свет 15 кВт, газ по границе. Дом зарегистрирован, возможна прописка, прямая продажа, 1 взрослый собственник. Немного вложений на отделку, приложить "руки" и это будет местом, откуда не захочется уезжать)))

















































































