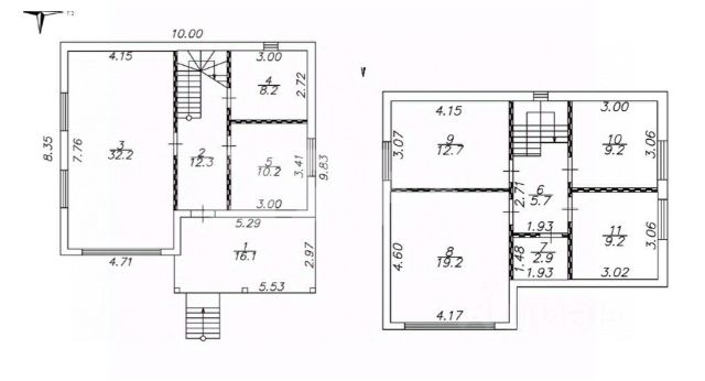
Этот дом пронизан любовью, счастьем уютом для детей и взрослых! ДОМ, БАНЯ, ДЕСТКАЯ ПЛОЩАДКА И ДОМИК ДЛЯ ДЕТЕЙ, ХОЗ БЛОК. Есть дома, в которые хочется возвращаться. Где с порога чувствуется забота, где каждая деталь продумана для уюта, а за окном — свежий воздух и красота природы. Этот дом для семейного отдыха. В нём продумано всё, чтобы детям было где играть, взрослым — отдыхать, а вместе — собираться за большим столом. Дом - настоящее пространство для жизни. 140 квм, 2 этажа. Утеплен пол и крыша 200мм, стены 150мм. Хауберг фасад. Шикарная планировка! Первый этаж: большая кухня-гостиная (более 30 м²) — сердце дома, где собираются все, спальня, санузел, котельная. Удобная лестница ведет на 2 этаж: три изолированные спальни, ещё один санузел, просторный холл. Всё продумано так, чтобы у каждого было личное пространство, а для общих дел — светлая и просторная гостиная. Большая участок - более 13 соток, огорожен забором из проф листа, откатные ворота, подсветка дома, дорожки и парковочная площадка. Участок продуман для всех членов семьи: детская площадка, игровой домик — любимое место малышей, хозблок для хранения и порядка. Шикарная баня — отдельная история для уютных вечеров На главной террасе дома можно жарить шашлыки и встречать рассветы. На террасе бани — провожать закаты, глядя на лес. Всё готово для жизни Дом пригоден для круглогодичного проживания: все коммуникации подведены Ничего не нужно доделывать — просто заезжай и живи! Подробности по телефону, документы готовы к сделке, показ по договоренности. Арт. 132757298






















































































