


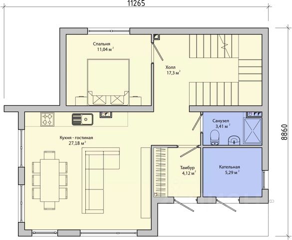
Прямой представитель собственника с ключами от дома. На большом участке современный дом с теплым гаражом. Дом полностью готов к проживанию. Мебель во всех комнатах. На участке выполнен ландшафт со взрослыми деревьями. Дом подключен к оптиковолоконному интернету, отапливается магистральным газом, центральные коммуникации. В доме приточно вытяжная вентиляция с рекуперацией, климат контроль. Общая площадь дома с гаражом 370 кв.м Большой участок по эргономике более 9 соток. Окна кухни, столовой, гостиной выходят на закатное солнце. На части террасы установлен навес (Летняя комната со шторами от дождя, подъем штор с электроприводом). Общее количество помещений в доме. Изолированных Комнат 4. Санузлы 4. Гардеробные 4. Веранда с рольставнями. Теплый гараж на 2 машины. Парковка на участке для 5 машин дополнительно. Высота потолка первого этажа 3,2 м. Гостиная-столовая-кухня более 70 метров. В доме 3 балкона. Документы готовы для продажи дома. о месте Школа 300 метров от дома Детский сад 500 метров Озеро с детской инфраструктурой 400 метров. Второе озеро с парком 700 метров Река Беляна с выходом в лес 4 км Технолицей 3 км Вундерпарк (Wunderpark International School) 4 км Покровская Общеобразовательная школа - 2,5 км Ломоносовская школа - 1 км Многоязычный детский сад Multilingua в Захарово - 1,5 км English Nursery and Primary School Детский сад, начальная школа -1,5 км Павловская средняя общеобразовательная школа - 5 км Бассейны, спортивная и медицинская инфраструктура Бассейн и спа в рядом с кп Бенилюкс - 4 км World Class Веледниково - 10 км Павловская участковая поликлиника - 8 км Торговые и развлекательные центры. ТЦ в Покровском - 2 км Аутлет в Покровском - 2,5 км ТЦ в Кембридже - 800 м ТЦ Бессарабка - 3 км Продажа коттеджа рядом с рекой Волоколамское шоссе.




































































































































































