


319 516 ₽/м²
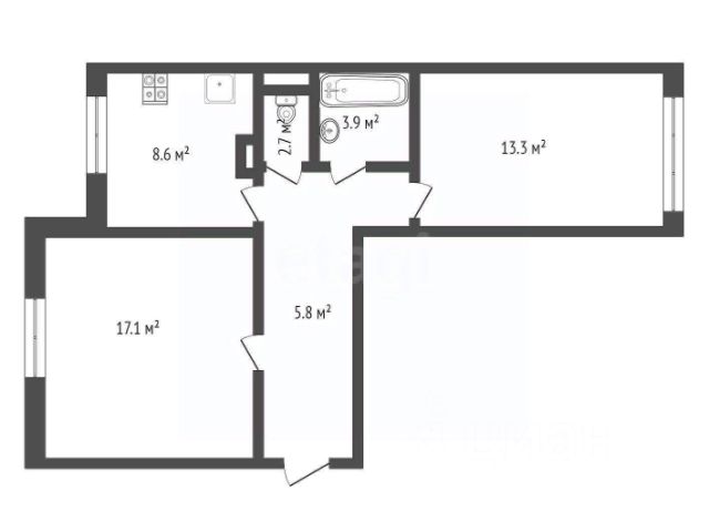
Код объекта: 2092760. Просторная 2к квартира с кухней 13 м² в зеленом районе Марьино — 10 мин. до метро! О КВАРТИРЕ: Продается уютная двухкомнатная квартира с отличной планировкой ("распашонка") — окна выходят на две стороны (во двор и на улицу). • Общая площадь: 57,9 кв. м. • Изолированные комнаты: 18,9 кв. м и 14,8 кв. м. • Просторная кухня: 12,9 кв. м — мечта любой хозяйки, где комфортно готовить и принимать гостей. • Балкон: 3,8 кв. м. • Состояние: Отличная возможность обустроить всё под свой вкус. Санузел раздельный. Высота потолков 2,8 м. О ДОМЕ И ПОДЪЕЗДЕ: Квартира расположена на 7 этаже 17-этажного панельного дома (1985 г.). Подъезд в идеальном состоянии: год назад проведен капитальный ремонт, чисто и аккуратно, установлен пандус для колясок. Соседи тихие и порядочные. ИНФРАСТРУКТУРА И ЛОКАЦИЯ: Район Марьино считается одним из самых благоустроенных и зеленых в Москве: • Природа: В пешей доступности набережная Москва-реки, парки с велодорожками и прудами — идеальное место для прогулок и спорта. • Транспорт: 1015 минут пешком до м. "Марьино", 2025 минут до МЦД "Курьяново". • Для жизни: Во дворе большая детская площадка и всегда достаточно парковочных мест. В шаговой доступности несколько школ, детские сады, поликлиники и магазины. ЮРИДИЧЕСКАЯ ИНФОРМАЦИЯ: Гарантируем безопасную сделку и полное юридическое сопровождение. • Поможем в одобрении ипотеки со сниженной процентной ставкой. • Сделка проходит прозрачно, все документы готовы. Звоните прямо сейчас, чтобы записаться на просмотр и оценить все преимущества лично! Продам квартиру элитные на улице Маршала Голованова в Москве.
















































































