


467 274 ₽/м²
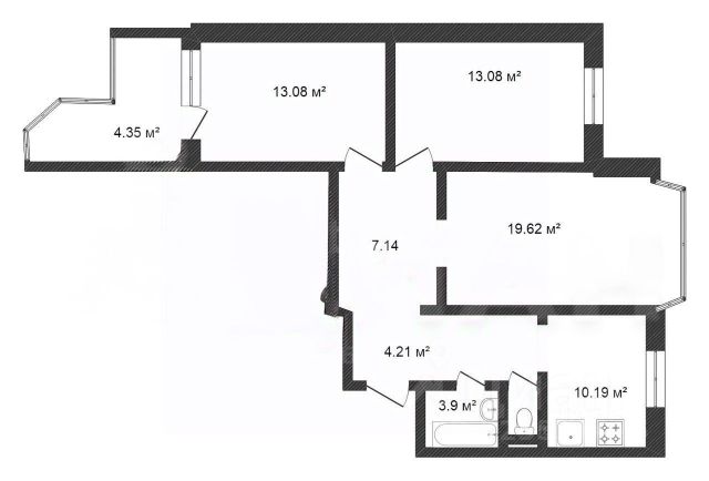
О квартире Продаётся 3-комнатная квартира общей площадью 83.71 кв.м. с отделкой white box. Квартира расположена на 12 этаже корпуса 4.1 в жилом комплексе бизнес-класса "Среда на Кутузовском" в пешей доступности от метро "Кунцевская". О жилом комплексе Комплекс предназначен для людей, которые ставят в приоритет свой комфорт, умеют прислушиваться к себе и понимают, что нужно для внутренней гармонии. Это проект для тех, кто ценит свое время и использует его правильно. Для тех, кто умеет радоваться тому, что есть. "Среда на Кутузовском" — личное место силы и гармонии в двух шагах от центра города. Инфраструктура Жилой комплекс строится в престижном и зеленом Кунцево. Здесь расположены различные торговые центры, престижные учебные заведения (МГУ, РЭУ им. Плеханова, Финансовый университет при Правительстве РФ, РУДН) медицинские клиники. Представлены широкие возможности для поклонников разных видов спорта: от бега в ближайших парках и велозаездов до гребли, баскетбола, футбола, хоккея, фигурного катания и катания на лыжах. На каждый день подойдет World Class с открытым бассейном — он находится всего в 1 минуте от дома. Выбор мест для прогулок также разнообразен: Суворовский парк, лесной массив Крылатских холмов, Москворецкий парк и природный заказник "Долина реки Сетунь". 10 мин пешком: -м. Кунцевская -вся необходимая инфраструктура До 15 мин на авто: -Северо-Западная хорда -Кутузовский проспект -Рублевское шоссе -МКАД -Можайское шоссе Особенности Проект сочетает в себе ритмичность и динамичность, благодаря своей архитектуре, при он этом окружен зеленью и парками. "Среда на Кутузовском" погружает в активный и разнообразный образ жизни, дает вариативные возможности досуга и вдохновляет на новые свершения. —Зоны отдыха у воды —Принцип многослойности в архитектуре —Зона барбекю —Пентхаусы —Умный паркинг —Гайдбук по управлению умным домом —Окна в пол на всех этажах



















































































































