


145 471 ₽/м²
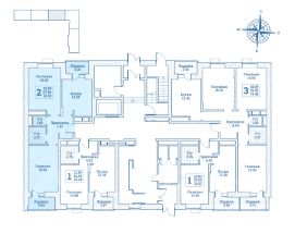
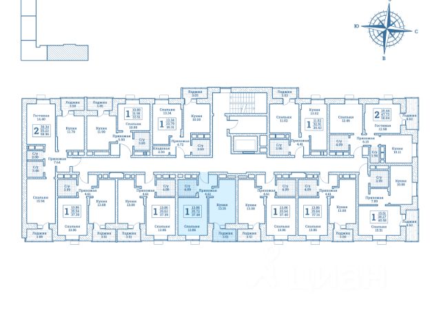
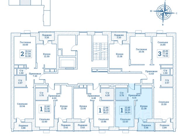
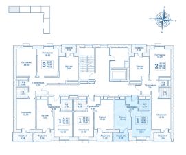
ЖК Новоград Монино СТАРТ ПРОДАЖ новой очереди квартиры от 4.8 млн. рублей. Всего 25 минут от МКАД по Горьковскому шоссе! Уже сегодня вы можете купить квартиру с первоначальным взносом всего от 971 000 рублей. Есть квартиры в сданных домах. Жилой комплекс Новоград Монино построен в одном из привлекательных районов Московской области, Городской округ Щёлково, поселок городского типа Монино. С комплекса выезд на Горьковское шоссе - всего 10 минут, Носовихинское шоссе - 20 минут, Щелковское шоссе 20 минут. Рядом находятся город Щёлково и Ногинск. Доехать до Москвы можно от Ж/д станции Монино (Ярославское направление). Автобус до метро Перово и метро Новогиреево. Новоград Монино - это новый район и 44 современных жилых дома. В комплекс застройки входит: три детских сада, две школы, два Торговых центра, 7 многоуровневых паркинга, ФОК, поликлиника, кафе, а также ресторан с гостиницей. Способы приобретения: семейная ипотека 6%, ипотека для IT 6%, военная ипотека. Работаем с жилищными субсидиями. При покупке можно использовать материнский капитал. Успейте купить квартиру своей мечты по привлекательной цене. Звоните сейчас и мы предложим вам индивидуальные условия!









































































































































































