2 500 000 ₽/м²
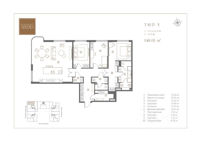
Продаётся трёхспальная квартира с премиальной финишной отделкой на 5 этаже клубного дома TURGENEV. Ключевыми особенностями объекта являются просторная кухня-столовая-гостиная площадью 55,24 м² с панорамными окнами и эркерным остеклением в столовой зоне. Окна выходят в тихий Малый Головин переулок, обеспечивая обилие естественного света. В квартире также расположена изолированная мастер-спальня с собственной ванной комнатой (10,51 м²), два дополнительных санузла и отдельная постирочная, оснащённая техникой немецкого бренда Kuppersbusch (стиральная и сушильная машины). Продуманные системы хранения реализованы в виде гардеробных зон в спальнях и прихожей-холле. Дом сдан в эксплуатацию. Квартира готова к проживанию. Клубный дом TURGENEV (Тургенев) расположен в ЦАО Москвы в районе Чистых прудов, в тихом месте на Костянском переулке между Садовым и Бульварным кольцом, в 3 км от Красной площади Кремля. Рядом большое количество достопримечательностей, музеев, театров, ресторанов, баров, торговых центров. Архитектурный проект дома разработан при участии международной команды архитекторов: Squire&Partners из Британии и Building Design Architectuur из Нидерландов. Фасад - натуральный камень: первые 6 этажей - португальский известняк, 7 и 8 этажи - гранит Dark Brown. Клубный дом TURGENEV имеет П-образную форму и состоит из 8 этажей, 5 секций и 118 квартир, включая двухуровневые пентхаусы с террасами и каминами. Все квартиры в Клубном доме TURGENEV реализуются с чистовой премиальной дизайнерской отделкой в современном стиле контемпорари от нидерландского бюро Wolterinck. В отделке квартир в TURGENEV используются экологичные, природные материалы премиального качества: пол из натуральной австрийской паркетной доски Austriawood, стены - итальянская краска PRATTA Exclusive, в санузлах - английская штукатурка Tadelakt и натуральный мрамор: итальянский Wooden White и греческий Pirgon. В каждой квартире установлены кухни от итальянского бренда Cesar со встроенной бытовой техникой премиальной линейки Smeg. Кухонный остров, столешница и фартук кухни выполнены из эксклюзивного итальянского мрамора Arabescato Grigio Orobico, одним из лучших видов мрамора на итальянском рынке натуральных отделочных камней. Внутренний двор с садом Клубного дома TURGENEV - оазис с зелеными газонами, мощеными тропинками, фонтанами, водными каналами и зонами для отдыха. Сад идеально вписан в пространство внутреннего двора. В доме предусмотрен инфраструктурный этаж, на котором расположены бассейн, фитнес-зона, зал для йоги, сауна, хаммам, дорожка Кнейпа, массажные кабинеты, кинотеатр, ресторан, винная, сигарная и переговорная комнаты. Вся инфраструктура Клубного дома TURGENEV также выдержана в едином стиле проекта. Каждый покупатель квартиры в Клубном доме TURGENEV может заказать дополнительную опцию - меблировка "под ключ". Лоты в новостройке можно оборудовать дизайнерской мебелью итальянского производителя LEMA.




































































































