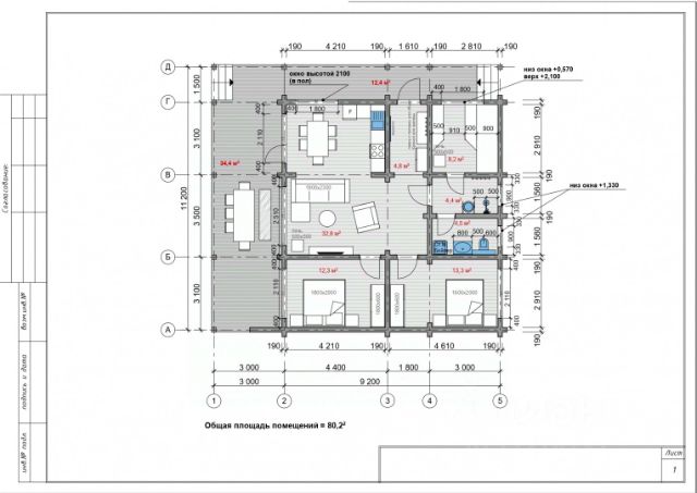
Арт. 124695838 Новый коттедж 127 м² под ключ с мебелью и техникой | КП "Воснецово Озеро" Дмитровский район, 55 км от МКАД Продаётся современный дом 127 м² на участке 8 соток в закрытом коттеджном поселке "Воснецово Озеро". Тихая, экологичная зона, рядом лес и озеро. Отличный вариант для постоянного проживания, отдыха или как доходная недвижимость. Особенности дома • Построен из массива бруса 200 мм компании ЛЕСТЕК • Надёжный фундамент на железобетонных сваях длиной 5 м • Утепление пола и крыши 250 мм (Юматекс Термоблок) • Кровля — велюровое покрытие • Современный интерьер с премиальной отделкой • Тёплый пол во всех ключевых зонах • Окна Veka с энергосберегающими стеклопакетами и панорамным обзором • Внешняя терраса из лиственничной доски Коммуникации и инфраструктура • Скважина 97 м с системой очистки воды • Электроснабжение 15 кВт, возможен газ • Современная электропроводка по индивидуальному проекту, скрытая в брусе • Пожарная сигнализация и видеонаблюдение • Система отопления, тёплый пол в ключевых зонах Планировка и удобства • Просторная гостиная, две спальни • Ванная комната с душевой кабиной, туалет, тамбур • Просторная сауна с панорамным окном и дистанционным управлением печью • Внешняя зона отдыха: кострище, мангальная площадка, уличная мебель • Парковка на 4 машины, участок с газоном и дорожками Природа и локация • Участок с выходом в лес, вид на природу • Озеро для купания и рыбалки в 400 м • Крайний участок, тихое место, соседей спереди нет • Рядом: горнолыжный курорт "Сорочаны", парк Яхрома, доставка из Озон и Wildberries Дополнительные преимущества и доход • Закрытый поселок, всего 12 домов, автоматические ворота • Скоростной интернет Линк Телеком • Возможность подключения газа, сельский тариф на электричество • Все документы в порядке, дом готов к продаже • Отличная возможность для сдачи в аренду: средний доход — 1216 тыс. ₽ в день без учета сауны и чана • Можно сдавать на долгий срок, как посуточно, так и для корпоративных или семейных гостей Дом сочетает комфорт, экологию и готовность к проживанию, а также может стать источником стабильного дохода.













































































