Мы используем куки-файлы. Соглашение об использовании
Помещение свободного назначения, 704,4 м²
Площадь704,4 м²
Этаж8 из 8
Отчёт о привлекательности объектаУзнайте, насколько помещение и район подходят для вашего бизнеса
Что входит в отчёт
  • Охват населения
  • Пешеходный трафик
  • Автомобильный трафик
  • Средний бюджет семьи по району
  • Арендные ставки рядом
  • Точки притяжения
  • Конкуренты в радиусе 1 км
  • Рекомендации по выбору места для бизнеса
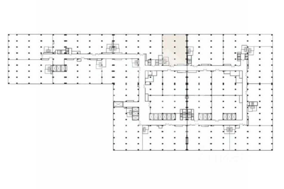
993121. Предлагается склад общей площадью 704,4 кв.м. в БЦ "Левел Ворк Свободы" в СЗАО. Преимущества: Удобный выезд на Волоколамское шоссе. 5 км от МКАД. 5 минут езды до станций метро "Сходненская", "Тушинская". Развитое торговое и рекреационное окружение. Готовность - 2028 год. На территории: столовая, переговорные, офисы, шоурумы, медицинский центр. 8-ой этаж. Типовой ремонт. Многоуровневый крытый паркинг. В пешей доступности остановки общественного транспорта, пешеходный переход. Круглосуточный доступ и техподдержка. Технические характеристики: Площадь: 704.4 кв.м. Высота потолков: 4,5 м. Нагрузка на пол: 1,5 т/кв.м. Электрическая мощность: 90 Вт/кв.м. Паркинг (м/м): 350 м/м. Производственный комплекс оснащён 36 погрузочно-разгрузочными доками, промышленными лифтами с грузоподъёмностью до 8 тонн.
lock

Войдите или зарегистрируйтесь
для просмотра информации

Просматривайте условия сделки и всю информацию об объекте
Сохраняйте фильтры в поиске и не вводите заново
Доступ к избранному с любого устройства
Неограниченное добавление в избранное
Позвоните автору
Вам ответят на все вопросы
Остались вопросы по объявлению?
Позвоните владельцу объявления и уточните необходимую информацию.
  • Инфраструктура
  • Похожие рядом
Помощь надёжных риелторов
Риелтор партнёр Циан поможет купить или продать любую недвижимость
131 722 800 ₽
1 763 483 $
1 503 809
Цена за метр
187 000 ₽
Налог
НДС включен: 23 753 291 ₽
Агентство недвижимости
Документы проверены