После косметического ремонта предлагается уютная двухкомнатная квартира - кухня и гостиная объединены в единую просторную зону. В квартире произведена полная окраска всех стен, сделан комплексный клининг, включая хим.чистку дивана. Куплен новый матрас. Установлена стиральная машина и микроволновая печь. Планировка: кухня-гостиная, спальня, гардеробная, с/у с просторной , балкон. Квартира светлая, оснащена необходимой мебелью и техникой. При входе в квартиру организована зона хранения вещей и обуви. В спальне оборудована вместительная гардеробная. В ванной комнате - душ (ванны нет). Из гостиной есть выход на просторный балкон. В солнечные дни квартира залита светом. Во дворе детская площадка. Въезд под шлагбаум. В подъезде консьерж. Инфраструктура и транспортная доступность района развиты. До ТЦ Океания 15 минут прогулочным шагом. В пешей доступности 3 станции метро, 2 школы, 2 детских сада, центр физической культуры и спорта, супермаркеты Магнолия и ВкусВилл, аптека, рестораны, кафе, различные магазины и точки оказания услуг. Район с обширным озеленением и многолетними деревьями. Недалеко от дома живописный пруд для прогулок, который зимой превращается каток для местных жителей.
Аренда двухкомнатных квартир на улице Кастанаевская в Москве на длительный срок (от 70 тыс. руб.)
Сдается с 27 декабря шикарнейшая квартира, в роскошнейшем ЖК. Квартира полностью укомплектована. Дизайнерский ремонт. Посудомойка, стиралка, телевизор, холодильник и отдельно морозильная камера. Все для Вас! Доставьте себе удовольствие жить в достойной квартире)
Сдаю россиянам на длительный срок роскошную видовую 2-к новую квартиру с прекрасной локацией и свежим дизайнерским ремонтом в ЖК Shome. Квартира мебелирована новой дизайнерской мебелью: гардеробная, множество шкафов и систем для хранения вещей, встроенный кухонный гарнитур, обеденная группа, двуспальная кровать с качественным ортопедическим матрасом Аскона, раскладной двуспальный диван. Квартира также оснащена необходимой бытовой техникой: двухкамерный холодильник, стиральная машина, посудомоечная машина, микроволновка, жк телевизор, электрокамин с эффектом живого пламени, централизованное кондиционирование, теплые полы. В доме есть консъерж, круглосуточное видеонаблюдение и охрана, скоростные лифты, огороженная территория с элементами ландшафтного дизайна и выходом в парк с прудами. В пешей доступности 3 станции метро, Москва- река, Филевский парк, магазины Магнолия, Вкус Вилл, Пятерочка, фитнес-клуб, школа, институт Международной торговли, Московский Кадетский корпус, училище Олимпийского резерва. Рядом- удобный выезд на Рублевское шоссе. Дополнительно можно арендовать машиноместо на -1 уровне (около лифта) подземного паркинга за 20 тыс. рублей в месяц. ----- Примечание: у собственника могут быть дополнительные пожелания к жильцам - обсудите их в чате или по телефону
Сдается 2-х комнатная квартира с новым дизайнерским ремонтом площaдью 55,6 кв.м на станции метро Багратионовская. Квартира оснащена всем необходимым и полностью укомплектована для проживания, из окон открывается панорамный вид на Поклонную гору. У квартиры продуманная планировка: 2 изолированные комнаты, кухня, раздельные ванная и санузел, вместительная гардеробная, большая лоджия. Кухня: встраиваемая быт. техника - холодильник, вытяжка, эл.варочная панель, духовой шкаф, СВЧ, посудомоечная машина; витрина с подсветкой, обеденный стол со стульями. Прихожая: видеодомофон, теплые полы, 2 шкафа, стирально-сушильная машина. Санузел: инсталляция, мини-раковина, гигиенический душ. Ванная комната: полотенцесушитель, ванна, раковина, зеркало в потолок, тёплый пол. Спальня: большая кровать 180х200см с ортопедическим матрасом Аскона, шкаф, туалетный столик, телевизор 65 дюймов, кондиционер. Гардеробная: очень вместительная (видно на фото), подсветка по периметру всех шкафов, зеркало в полный рост. Гостиная: большой раскладной диван, телевизор 75 дюймов, книжный шкаф, кондиционер. Лоджия: теплые полы, вместительный шкаф, барная стойка с барными стульями. Прямой вид на стеллу Парка Победы. Квартира продумана с точки зрения удобства и эстетики: межкомнатные скрытые двери, большое количество мест для хранения, все шкафы в потолок, что упрощает уборку, огромное количество вариантов освещения, на окнах москитные сетки. Тихий двор, адекватные, постоянно проживающие соседи. Инфраструктура: продуктовые супермаркеты, школы, детские сады, медицинские учреждения, аптеки, кафе, салоны красоты. * Транспортная доступность: станция метро Багратионовская (4 мин пешком). До Кутузовского проспекта 3 мин на авто. Квартира идеально подходит для семейной пары. Оплата: первый месяц + возвратный депозит за сохранность имущества в размере месячной оплаты + вода, электроэнергия по счетчикам + интернет.
ВСЕ НОВОЕ, Сдается первые. Договор с собственником. Предлагаем в аренду отличный объект недвижимости для комфортной жизни! Почему стоит снять именно эту квартиру? - Отличная транспортная доступность - Рядом парки, магазины, кафе и вся инфраструктура - Безопасный двор, спокойный район - Возможно срочное заселение - Дети и Животные обсуждаются Квартира с ЕВРО ремонтом, есть все необходимое для комфортного проживания, комнаты ИЗОЛИРОВАННЫЕ, санузел раздельный, лоджия, места для хранения вещей. Качественная входная дверь. Чистый подъезд. Во дворе дома оборудована детская площадка, парковочные места есть всегда. Ухоженная придомовая территория. Квартира готова к заселению, сдается на длительный срок. Юридическое сопровождение договора аренды: анализ необходимой документации, согласование проекта договора аренды с потенциальным арендатором! ОПЕРАТИВНЫЙ ПРОСМОТР! МЫ ЖДЕМ ИМЕННО ВАС!
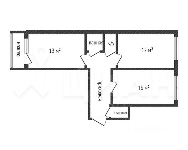
Сдаётся в аренду уютная двухкомнатная квартира в Москве на Кастанаевской улице, всего в 5 минутах пешком от метро Пионерская. Квартира с евроремонтом, в каждой комнате и на кухне есть вся необходимая мебель. Среди бытовой техники: кондиционер, холодильник, посудомоечная машина, телевизор и стиральная машина. Планировка удобная, с одним совмещённым и одним отдельным санузлом. Окна выходят как на улицу, так и во двор. Также имеется балкон, где можно наслаждаться свежим воздухом. Дом находится в отличном состоянии. Для удобства жителей предусмотрены два пассажирских и один грузовой лифт, а также есть пандус и мусоропровод. Круглосуточно дежурит консьерж. Закрытая парковка возле дома (шлагбаум). Автовладельцы оценят наличие наземной парковки. Подключены интернет и телефон, что делает проживание еще более комфортным. Рядом с домом ТРИ детских сада, ДВЕ школы, детская поликлиника, взрослая поликлиника, женская консультация, Мазиловский пруд в 3-х минутах, Филевский Парк, Суворовский парк, парковая зона, что делает это место идеальным для семейного проживания. Удобная транспортная доступность и развитая инфраструктура района позволят вам экономить время и наслаждаться всеми благами городской жизни. Развитая инфраструктура с сетью всех магазинов. Условия аренды обсуждаются индивидуально. Заселение в квартиру с 13 января 2026 года, но показывать будем сейчас. Звоните и записывайтесь на просмотр, чтобы оценить все преимущества этого замечательного жилья лично!
- Застекленная лоджия из кухни; - Консьерж; - Современный ремонт и мебель. Диван не раскладной; - Есть гардеробная в гостиной; - Два кондиционера; - Посудомоечная машина; - На длительный срок
Лучшее приложение в данном районе! Развитая инфраструктура, шаговая доступность до станции метро Кунцевская. Недалеко от дома Филевская парк, школы, детский сад , поликлиника,множество магазинов. Современный дом, консьерж Квартира светлая, просторная кухня, никогда не сдавалась , балкон, СУР. Звоните, более подробно по телефону!
Сдается современная стильная двухкомнатная квартира с изолированными комнатами.. Два телевизора, три кондиционера, Духовой шкаф, микроволновая печь, посудомоечная машина новые. Фотографии с улучшениями выставлю завтра. Звонить с 10-23 часов.
Лучшее предложение! Предлагается в аренду светлая, просторная двухкомнатная квартира, с изолированными комнатами. Выполнен качественный евроремонт! Квартира оснащена необходимой бытовой техникой и мебелью для комфортного проживания. НОВАЯ бытовая техника( двухкамерный холодильник, электрическая плита, фото будут позже) Оборудована гардеробная комната. Установлен кондиционер. Много мест для хранения вещей. Большая лоджия. Санузел раздельный, установлен проточный нагреватель на время отключения воды. Сдаётся только на длительный срок! Развитая инфраструктура района. Квартира расположена в пешей доступности от трех станций метро: Пионерская, Славянский Бульвар и Филевский парк. Доброжелательный собственник. Приличные соседи. Оплата только по счетчикам. Звоните, уважаемые клиенты и коллеги.
Срочно! Сдам 2-ком. квартиру. Комнаты изолированные. Квартира после евроремонта. Полностью меблирована, всё новое. Никто не проживал, ранее в аренде не была. Развитая инфраструктура. В шаговой доступности школа, поликлиника, сетевые магазины. Оперативный показ и заселение! Звoните прямo сейчaс! Номер объекта: #1/2219479/109
К аренде от СОБСТВЕННИКА на длительный срок предлагается двухкомнатная квартира на 4 этаже в доме 2024 года постройки, в квартире никто не жил. 5 минут пешком до метро, рядом Филёвский парк, развитая инфраструктура. В квартире имеется 2 санузла, вся необходимая техника: духовой шкаф, стиральная и посудомоечная машина, холодильник, микроволновка, кондиционер в спальне. В гостиной небольшой набор мебели и диван с ортопедическим основанием. Готовы обсудить покупку дополнительной мебели с потенциальным арендатором. В доме имеется подземный паркинг. Квартира сдаётся на длительный срок от года, подойдёт семейным парам с детьми, в районе много хороших школ. Рассмотрим возможность аренды с юридическими лицами. В услугах риелторов не нуждаемся.
Пока объявление опубликовано, оно актуально. На длительный срок приличным платёжеспособным людям сдаётся 2-х комнатная квартира. Квартира тёплая. Состояние отличное. Комнаты квадратные на разные стороны. Есть всё необходимое для комфортного проживания. Все фото соответствуют. 6 минут до м. Пионерская. БЕЗ ЖИВОТНЫХ.
Номер лота - 3530399 ГАРАНТИИ КРУПНОЙ КОМПАНИИ. ЛУЧШЕЕ ПРЕДЛОЖЕНИЕ В 7 МИНУТАХ ШАГОМ ОТ МЕТРО!! Квартира сдается впервые. ДЕПОЗИТ РАЗБИВАЕТСЯ. Дом кирпичный по индивидуальному проекту. Планировка квартиры продумана максимально(две изолированные комнаты, комфортная кухня). Евроремонт, использовались качественные материалы. Мебель и бытовая техника известных премиальных брендов. В комнатах качественный паркет. Кухня, ванная, коридор-плитка. 2 кондиционера, водонагреватель на случай отключения воды. На радиаторах системы отопления есть регуляторы температуры. Стиральная машина с функцией сушки. Была произведена замена счетчиков электричества и водоучета. Электрика и сантехника в идеальном состоянии. Функционал кухни максимален!! Мойка снабжена измельчителем. Для особых поводов)-шкаф для хранения вина. Три станции метро в шаговой доступности, МЦД. Рядом парк, зона отдыха у пруда, масса магазинов, службы доставки, фитнес-клуб. Оперативный показ, замечательный собственник. ИНКОМ-Тургеневское.
Евродвушка в отличном спальном районе. Хороший евроремонт. Квартира оборудована всем необходимым для проживания. Два раскладных дивана и двуспальная кровать. Два вместительных шкафа и большой комод. В двух шагах от метро и МЦД "Славянский бульвар", чуть дальше метро "Пионерская". Во дворе парковка на 70 машиномест за шлагбаумом. Красивый подъезд с консьержем. Квартиру сдает собственник. Агентских платежей и комиссии нет.
Сдается 2-х комнатная квартира (окна на 2 стороны). ХОРОШИЙ РЕМОНТ! Можно с детьми. Без домашних животных. На длительный срок. Во всей квартире установлены стеклопакеты с москитными сетками и жалюзи на окнах. Есть застекленная большая лоджия. БЫЛА КУПЛЕНА НОВАЯ МЕБЕЛЬ: 2 ДИВАНА раскладывающихся, 2-х спальная КРОВАТЬ, СТЕНКА И ПРИХОЖАЯ!!!! Есть кондиционеры. Комнаты ИЗОЛИРОВАННЫЕ. Есть вся необходимая мебель, бытовая техника, телевизоры. На кухне микроволновая печь, мультиварка, электрогриль, стиральная машина, вытяжка. Рядом пруд (400 м) с зоной отдыха, Филёвский парк и Москва-река, вся инфраструктура в шаговой доступности. До метро Славянский бульвар и МЦД1 - 5 минут пешком, Пионерская - 5 минут пешком!!! Залог делим на 2 части. ----- Примечание: у собственника могут быть дополнительные пожелания к жильцам - обсудите их в чате или по телефону
Здравствуйте! Сдам квартиру на длительный срок, возможна аренда для сотрудников компании. В квартире есть все необходимое для проживания Стиральная машинка, холодильник, газовая плита, мебель обсуждается. По всем вопросам обращайтесь по телефону с 10:00-20:00. Собственник
СОБСТВЕННИК ! Метро Алтуфьево 4 минуты пешком! Высокий 1-й этаж! Свободная продажа, без обременений, ни кто не прописан! Продаётся классная двушка с дизайнерским ремонтом! Планировка - распашонка. 2-х комн. квартира с новым дизайнерским евро-ремонтом (цветовая концепция выполнена в спокойных-светлых тонах). 1/12 эт. блочного монолитного дома. Общая площадь 51 м. Комнаты изолированы: Кухня 8,5 метров , гостиная 17 метров, спальная 13 метров, гардеробная есть, лоджия застеклена- утеплена, с/у большой совмещенный , все новые коммуникации, стеклопакеты, посудомоечная машина .Квартира продаётся с новой мебелью, кухней и техникой- всё покупалось под заказ. Вся инфраструктура,в шаговой доступности: школа, дет.сад, торговые центры . Возможна ипотека! Рядом метро !



1-комн.кв. · 37,6 м² · 14/17 этаж
Продается однокомнатная квартира (евро-2) с новым качественным ремонтом на 14-м этаже 17-этажного дома. Общая площадь квартиры - 37,6 кв.метров: Кухня-гостиная - 18 кв. метров, Спальня - 14 кв. метров, Ванная, коридор. Высокие потолки. Квартира с хорошим видом, окна выходят на запад, в сторону Дмитровского шоссе.. Квартира полностью подготовлена к проживанию и продается с мебелью и встроенной бытовой техникой. Кухня-гостиная: полноценный кухонный гарнитур, встроенный холодильник, духовой шкаф, посудомойка, раскладной диван, стол. В квартире два кондиционера. Спальня: двуспальная кровать, шкаф-купе, шторы блэкаут. Санузел: стиральная машина Bosch, большое зеркало с подсветкой. Инфраструктура. Дом расположен в хорошо развитом районе Москвы. В пешей доступности от дома - парк Ангарские пруды. В районе отличные школы, много торговых и спортивных центров. До метро Яхромская 5 минут пешком. На авто - удобный выезд на Дмитровское шоссе. Документы: - 1 взрослый собственник, - Без обременений, - Свободная продажа, - Полная стоимость в ДКП, - Быстрый выход на сделку.
Продаётся 1-к квартира 47 кв.м. на 3-м этаже 51 этажного дома. Без отделки. Срок сдачи: 1 кв. 2028 г. Жилой комплекс "СВЕТ" — воплощение современного комфорта и архитектурного изящества, созданное девелопером Dominanta в сотрудничестве с известным бюро СПИЧ. Комплекс представляет собой элегантное 52-этажное здание, расположенное в Западном Дегунино, на Дмитровском шоссе, 83А. Удачное местоположение обеспечивает удобство для жителей: станция метро "Селигерская" находится в пешей доступности, что делает путь в центр Москвы быстрым и комфортным. Транспортная доступность: - 5 минут пешком до станции метро "Селигерская" - 15 минут на машине до ТТК - 16 минут на транспорте до станции МЦД "Моссельмаш" Квартиры бизнес-класса в ЖК "СВЕТ" сочетают функциональность и эстетическое совершенство. Панорамные окна наполняют жилые пространства естественным светом и открывают захватывающие виды на мегаполис. Каждый житель дома получит доступ к бесплатной клубной инфраструктер SocialHUB. Для бизнес-задач и запуска личных проектов хоум-офис c рабочими станциями, переговорными и креативной студией. Для отдыха и формирования новых социальных связей ивент-пространство, которое подойдет для вечеринки, кинопоказа или паблик-тока. Для новых побед зоны для занятия киберспортом. И главное SocialHUB полностью бесплатен для жителей, все расходы на его содержание покрываются застройщиком. Территория проекта "СВЕТ" включает несколько сценарных зон: ландшафтный парк с шаговой тропой, спортивная зона, открытый амфитеатр, двухуровневая детская площадка, уличные рабочие станции и беседки для отдыха. Сложный рельеф с искусственными холмами и живыми изгородям позволяет эффективно разделить пространство на активные зоны и уединённые "кабинеты" для работы, отдыха или медитации. В ЖК "СВЕТ" каждый найдет арену для своей энергии. Для любителей динамичных игр — павильон для падел (модного микса тенниса и сквоша). Рядом — площадка для стритбола и столы для пинг-понга, где можно устроить соседский турнир! И, конечно, абсолютный мастхэв — зона воркаут для функциональных тренировок под открытым небом. У входа в жилой комплекс гостей встречается арт-объект, разработанный Студией Артемия Лебедева. Его мягкий, волнообразный силуэт напоминает разлитый свет. С заходом солнца арт-объект оживает благодаря светоотражающим материалам его форма становится динамичной и задает настроение всему пространству. Застройщик ООО "СЗ "Лазурит". ИНН 7714477497. ОГРН 1217700497112. Проектная декларация на сайте наш.дом.рф. Предложение не является публичной офертой.
Дизайнерская 2ккв 45м2 у метро Планерная ! До метро Планерная 3 минуты пешком ! ул. Планерная 12к3. Все окна во двор! В Обьявлении Живые Фото этой квартиры, приходите на просмотр и убедитесь ! Дом ЖСК, в отличном состоянии, подъезд чистый, двор закрыт шлагбаумами! Этаж 8 из 9. Спокойный зеленый район! Общая площадь без балкона 45м2. Кухня 6м2, две изолированные комнаты 19 - 9м2. В квартире есть полноценная гардеробная комната 3м2, полностью оборудованная шкафами. Мебель изготовлена по индивидуальному заказу в соответствии с дизайн-проектом. Кровать с подьемным механизмом и дополнительным местом для хранения, Диван раскладной (еврокнижка). Кухня полностью укомплектована современной встроенной техникой: варочная поверхность, посудомойка, духовой шкаф, холодильник, вытяжка. Установлен Кондиционер. В квартире сделан капитальный ремонт с полной заменой всех коммуникаций: электро и интернет проводки, сантехнических труб. Новая стяжка и перегородки, натяжные потолки. Вся мебель и техника входят в стоимость квартиры ! Ремонт закончен неделю назад! В шаговой доступности - парки , сады, школы, детская и взрослая поликлиники, дворец творчества, фитнес клуб, и тд. Один собственник. Свободная продажа. Никто не прописан, обременений нет. Подходит ипотека любого банка, возможна субсидия, сертификат, маткапитал. Звоните!
БЕЗ ТОРГА Агентов просьба не беспокоить. ЧИТАЙТЕ ОБЪЯВЛЕНИЕ, СМОТРИТЕ ПЛАНИРОВКУ, ОТКРЫВАЙТЕ КАРТУ - ЕСЛИ ВСЁ ПОДХОДИТ И ГОТОВЫ КУПИТЬ, ПРИХОДИТЕ НА ПРОСМОТР. В лучшей локации района - ЖК Life-Сходненская (комфорт-класс, не реновация) - продаётся одна из наиболее удачных однокомнатных (не угловая, потрясающий панорамный вид на водохранилище (см. фото), без соседских окон). Тихо, зелено, экологично, при этом вся инфраструктура рядом! До парка, метро, Калейдоскопа - рукой подать. Общая площадь - 40, без балкона - 37,6, комната - 19, кухня - 7,3, прихожая - 7,4. Фото экспликации приложено. Из мебели остаётся отличная встроенная кухня с качественной досанкционной техникой и материалами (не Китай!) . Фасады - натуральный шпон, итальянская мозаика, варочная панель, духовка, посудомойка. Всё практически новое, ничем почти не пользовались. Никогда не сдавалась! ЗА ИСКЛЮЧЕНИЕМ КУХНИ, КВАРТИРА ПРОДАЁТСЯ БЕЗ МЕБЕЛИ. Абсолютная юридическая чистота. Приобреталась первым и единственным взрослым собственником по ДДУ у Застройщика, сдача дома в эксплуатацию - 2013 год. Полное отсутствие потенциальных прав третьих лиц (без супругов, детей, мат. капитала и т.д.). ВСЕ СПРАВКИ И ПРОВЕРКИ - ЗА СЧЁТ ПОКУПАТЕЛЯ Есть небольшой остаток ипотеки в ВТБ. Сделка будет осуществляться через аккредитив в этом банке, при желании у покупателя есть возможность взять ипотеку у них же. Хорошая УК. Шлагбаум, охрана, видеонаблюдение (в т.ч. в подъезде). На территории ЖК есть многоуровневый паркинг, где можно приобрести или арендовать машиноместо. Возле дома - бесплатные парковочные места.
1-КОМНАТНАЯ КВАРТИРА 55,04 м2 УСПЕЙТЕ ЗАБРАТЬ САМАЯ НИЗКАЯ ЦЕНА В ЭТОМ ЖК!!!!!!! Уникальное предложение для тех, кто ценит комфорт и уют! Продаётся светлая и просторная однокомнатная квартира в Москве по адресу: Огородный проезд, 20. Квартира расположена на 20 этаже кирпично-монолитного дома. Общая площадь — 55,04 м²,. Высота потолков — 3,15 метра, что создаёт ощущение простора и свободы. В квартире выполнен ремонт white box, что позволит вам воплотить самые смелые дизайнерские решения. Мы гарантируем безопасную сделку и юридическую поддержку нашим клиентам. Поможем одобрить ипотеку с сниженной ставкой. Не упустите свой шанс стать обладателем этой замечательной квартиры! Позвоните нам прямо сейчас, чтобы узнать больше информации -1 собственник -Отделка будет white box -Срок сдачи 3 квартал 2027 -Без обременений -полная стоимость Арт. 126250510
Продаётся 2-комнатная квартира площадью 61.57 кв.м на 3 этаже 19 этажного корпуса Олимп в квартале небоскребов "Upside Towers". В квартире отделка White-box, c видом на корпус Атлас, корпус Эльбрус, Гранд-плаза, Бизнес-парк Останкино, прогулочный бульвар, детский сад, школу. Номер квартиры В0302. Upside Towers - технологичный квартал строится в динамично развивающемся Бутырском районе, в 3 мин. от метро, в 5 мин. от ТТК. На территории 7 га возводится 5 высотных башен от 19 до 58 этажей, названных в честь главных вершин земли. Квартиры с панорамными окнами в пол, высокими потолками и современными инженерными решениями. Благоустроенная зеленая территория включает: приватные дворы, природный комплекс, прогулочный бульвар, ландшафтный парк 2,5 га с сенсорным садом и многофункциональными игровыми и спортивными площадками. В корпусе откроются магазины, кафе и рестораны, а также другие объекты коммерческой инфраструктуры. Большое внимание в проекте уделяется созданию социальной инфраструктуры. Между "Атласом" и "Олимпом" в трехэтажном стилобате разместится уникальное пространство закрытый клуб для жителей квартала Upside Club площадью 2 000 кв. м. Здесь разместятся: каминный зал с роялем, многофункциональная детская зона c двухуровневым игровым оборудованием для малышей и дошкольников, плей-рум для подростков, домашний кинотеатр, коворкинг, переговорные и лектории. На 47 этаже башни "Атлас" откроется SKY SPA Relax с расслабляющей атмосферой, джакузи, сауной, залами для релаксации и йоги. Собственники квартир смогут в любое удобное для них время забронировать посещение спа-зоны через смарт-приложение. На крыше стилобата разместится всесезонная BBQ патио-зона с верандой и закрытыми помещениями для приготовления и отдыха. В башнях откроются смотровые террасы для резидентов с панорамными видами на город, парки, Останкинскую башню, ВДНХ, Ботанический сад и Москву-Сити. Покупая квартиру даже самого минимального размера в Upside Towers, вы получаете в пользование 2 000 м² бесплатных общественных пространств. В рамках проекта строится государственная школа и детский сад, разместится более 15 000 кв.м. коммерческой инфраструктуры. Насыщенная социальная инфраструктура формирует множество сценариев для жизни на территории квартала. В Upside Towers применяются лучшие технологии и практики, чтобы обеспечить высшее качество жизни: Воздух, не уступающий по качеству горному, обеспечит приточно-вытяжная вентиляция. Пятиступенчатая очистка воды с сохранением полезных минералов. Центральное кондиционирование. Внутрипольные конвекторы с естественной конвекцией. Современные системы безопасности и мониторинга микроклимата. Высокоскоростной интернет на всей территории, в квартирах и паркинге за счет усиления GSM-связи всех ведущих операторов. Все места в подземном паркинге оборудованы зарядками для электрокаров. Бутырский район непрерывно развивается и готовится стать новым современным деловым районом Москвы. В рамках программы "Индустриальные кварталы" комплек
КВАРТИРА площадью 35 кв. м в панельном доме в Москве - с косметическим ремонтом. Продажа в связи с расширением. Сделка альтернативная. ПЛАНИРОВКА: В квартире изолированная комната 19 м2, кухня площадью 9 кв. м. с балконом. Совмещенный санузел оборудован ванной. ДОМ находится в хорошем состоянии, с наземной парковкой, с грузовым и пассажирским лифтами. Управляющая компания ГБУ "ЖИЛИЩНИК РАЙОНА ХОВРИНО". ЛОКАЦИЯ: Район предлагает развитую инфраструктуру: рядом две школы, продуктовые магазины в шаговой доступности. До станции метро Ховрино можно дойти пешком за 11 минут. УСЛОВИЯ СДЕЛКИ: Альтернативная продажа. Долгов и обременений нет, один собственник. В собственности более 5 лет. Возможна ипотека. Показ по договоренности. Звоните!















































































