От года, комм. платежи включены (без счётчиков), без комиссии, залог 60 000 ₽
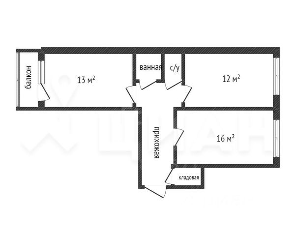
Сдаётся уютная двухкомнатная квартира общей площадью 46.6 кв. м на последнем, девятом этаже панельного дома. Хорошая транспортная доступность. Станция метро Сетунь находится в 19 минутах пешком, что делает её удобным вариантом для комфортного проживания. Можно доехать на автобусах или маршрутках до м. Молодежная, м. Кунцевская, м. Славянский бульвар, м. Киевская. В квартире выполнен свежий, хороший ремонт. После ремонта никто не жил. Окна ПВХ. Комнаты меблированы, на кухне и в комнате есть необходимая мебель. В наличии вся необходимая техника: холодильник, телевизор и стиральная машина. Окна выходят на Можаское шоссе. Санузел раздельный, с ванной. Квартира очень тёплая. Проведён интернет. Дом оборудован пассажирским лифтом. Инфраструктура района развита: рядом находятся школы, детские сады, клиники и магазины, кафе, что делает проживание здесь комфортным и удобным. Условия аренды: 70 000 рублей/ в месяц+ оплата по счётчикам + залог 60 000 р. Можно с детьми и животными. Нет возможности принимать звонки, прошу писать в сообщения ЦИАН.

























































































