Ранее квартира не сдавалась. Чистая. Трехкомнатная смежно-изолированная квартира, сдается на длительный срок. Пешая доступность до трех станций метро: Зюзино (8 мин.), Каховская и Севастопольская (15 мин.). Развитая инфраструктура: детские сады, школы, поликлиника, супермаркеты. Оплата коммунальных услуг по счетчикам, в стоимость аренды не входит. ЗАЛОГ РАЗБИВАЕМ ВОЗМОЖНА ВРЕМЕННАЯ РЕГИСТРАЦИЯ
Аренда трехкомнатных квартир в районе Зюзино в Москве на длительный срок (от 70 тыс. руб.)
Полноценная 3-комнатная квартира в современном доме рядом с метро Каховская/Севастопольская. Изолироаанные комнаты: две спальни с двуспальными кроватями и гостиная с угловым диваном, два больших коридора, гардеробная, раздельный санузел, просторная кухня, балкон с французскими окнами. Квартира новая, ранее не сдавалась. Вся мебель новая, оборудованная кухня "под ключ", новые холодильник, посудомоечная машина, духовой шкаф и варочная панель, новая сантехника. Вся инфраструктура рядом с домом. На первом этаже дома магазины, филиал частной школы Ника, ПВЗ. Парковка - шлагбаум. Семье на длительный срок.
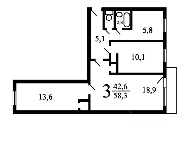
Адрес: ул. Севастопольский проспект, дом 73. Реновация дома (снос) только в 2029-2032 году. Район Черемушки - престижный и зеленый район со сложившейся инфраструктурой. Удобное расположение дома позволяет быстро добраться до метро и основных магистралей ведущих в центр города. Шаговая доступность до метро Зюзино - 3 минуты пешком., Транспортом минут 10-15 Калужская , Новые Черемушки, Севастопольская Сдается аккуратная, светлая и уютная 3 комн. квартира. Первый этаж, на окнах решетки. Планировка: одна изолированная комната и две смежные с гардеробной - во вложение актуальный поэтажный план квартиры МИНИМУМ мебели , две комнаты пустые и техника (холодильник , стиральная машина, телевизор, микроволновая печь) для комфортного проживания. есть ГАРДЕРОБНАЯ комната со встроенными шкафом и полками . Кухонный гарнитур , обеденный стол, газовая плита . Санузел совмещенный с полноценной ванной. Металлическая дверь. Окна выходят на тихий зеленый во двор. проведен Интернет. Перед домом есть детская площадка и свободные парковочные места. Прекрасная инфраструктура; школы, детские сады, поликлиники и пр. Торговые центры : Прайм Плаза, КЦ Бухарест, Сетевые магазины,.спортивный клуб: World CLass Вокруг много лесопарковых зон. До станций метро Зюзино 3 минуты пешком. Рядом школа, стадион, детский сад. Рядом управа района, храм, 2 облагороженных пруда, храм. В ближайшей пешей доступности торговые центры, поликлиника, аптеки, сетевые магазины , Москворецкий рынок и пр. парки : Битцевский, Зюзино, Воронцовские пруды, парк 70-летия Победы. Сдается на Длительный срок. Рассмотрим порядочных и платежеспособных жильцовРФ. Стоимость 70 тыс.руб , дополнительно плюс - только вода и электроэнергия по счетчику. Залог на две части ( на два месяца) разделят ( разобьют) Можно с животным. Подробности по телефону ежедневно с 8:00 до 23:00 , Звоните. Оперативный показ Номер объекта: #1/539993/24086
Сдается большая трехкомнатная квартира в жилом комплексе бизнес-класса, в шаговой доступности до м. Севастопольская/Каховская (1 мин. пешком) В квартире сделан качественный ремонт, установлена мебель и техника, все в отличном состоянии. 2 спальной комнаты: хозяйская спальная с гардеробной и санузлом, вторая спальная комната=детская с 2мя односпальными кроватями. Подсобные помещения: три санузла, 2 гардеробных, постирочная, две лоджии. В подъезде современная входная группа с консьержем. Жилой комплекс с подземной и гостевой парковкой, территория благоустроена и огорожена, круглосуточная охрана. В шаговой доступности Битцевский парк, конно-спортивный комплекс, детские сады, школы, ТЦ "Азовский", аквапарк Кимберли и многое другое. На длительный срок. Коммунальные по счетчику. Свободна для показа с 21 октября 2024 года
Сдается квартира со свежим ремонтом. Наличие всей техники и мебели. Тамбур на две квартиры и общий на четыре закрывается дополнительно. В доме Новый лифт. Квартира теплая, светлая. В квартире три раздельных комнаты. В каждой есть спальное место, что удобно для семьи с детьми. большая спальня с удобной кроватью и вместительным шкафом. Уютная кухня со всей необходимой техникой ( посудомоечная машина, СВЧ)Рядом с домом сады и школа, множество магазинов . В шаговой доступности метро Зюзино. Напротив Битцевский парк и озерами, белочками и прогулочными дорожками.Для семьи РФ. Ключи на руках.
РИЭЛТОРАМ и АГЕНСТВАМ НЕ БЕСПОКОИТЬ!! Сдается долгосрочно квартира в ЖК Родной Город, до метро Каховская 3 мин пешком, метро Севастопольская 7 минут пешком. В квартире кухня- гостинная, спальня, детская комната и гардеробная. Квартира оборудована всей необходимой мебелью и техникой, много мест хранения. Вся необходимая инфраструктура в пешей доступности. Сдается семье от года. Заезд возможен с 5 февраля.
Номер лота - 2705853 ПРОСЬБА ЗВОНИТЬ, А НЕ ПТСАТЬ! Встроенный кухонный гарнитур со всей бытовой техникой. Комнаты изолированные. Современная гарнитурная мебель, спальный гарнитур, кабинет, гостинная. В подъезде консьерж и видео наблюдение. Пешая доступность от метро. Развитая инфраструктура района: школы, торговый центр, кинотеатр, рынок. ИНКОМ-Проспект Мира.
Сдается на прямую от владельца в аренду просторная и стильная квартира площадью 142м², расположенная в охраняемом жилом комплексе с огороженной территорией. Возможна аренда парковочного места в подземном паркинге. Особенности квартиры: Гостиная: просторная, совмещенная с кухней Кухня: полностью оборудована дорогой техникой, включая два холодильника liebher, индукционную плиту и тп. Спальни: две уютные комнаты с современной мебелью, выполненной на заказ. Мастер-спальня состоит из двух совмещеных комнат , с рабочей зоной - столом для орг техники, большой гардеробной системой, туалетным столиком. С/У: два санузла — один с душевой кабиной, второй с большой ванной-джакузи с гидромассажем и зеркальными потолками. Кондиционеры Daikin: установлены в каждой комнате для вашего комфорта. Телевизоры: современные телевизоры в каждой комнате. Система хранения: просторная прихожая и вместительные шкафы в каждой спальне и постирочной комнате. Полы: паркет из натурального дерева, придающий интерьеру тепло и элегантность.
квартира для семьи россиян с детьми , рядом с подъездом 2 школы,с агентами не работаю есть свой агент.Метро Зюзино в 5 мин пешком
Сдается трёхкомнатная квартира, распашонка, вид на двор и улицу. Охраняемый двор, консьерж, Во дворе д/сад, школа. Полностью меблирована, посудомоечная и стиральная а/м, плита, духовка. Оперативныя показ, ключи на руках. Рассмотрим все предложения.
Сдается 3-х комнатная квартира с изолированными комнатами. Дом новый, соседи хорошие. Отличная планировка, комнаты просторные, большая кухня, сан.узел раздельный. Квартира полностью меблирована, оборудована необходимой бытовой техникой.Дом расположен во дворе, хорошая транспортная доступность, метро в 12 минутах ходьбы. Район обжитой со сложившейся инфраструктурой. в 10 минутах ходьбы расположен зеленый оазис - битцевский лесопарк. Сдается на длительный срок одной семье без домашних животных, не курящим! Можем сдать машино-место в подземном паркинге за 15 тысяч рублей.
На длительный срок сдаётся в аренду уютная трёхкомнатная квартира с изолированными комнатами, полностью меблированная, со всей необходимой бытовой техникой: холодильник, духовой шкаф, микроволновая печь, стиральная машина, пылесос, фен, утюг, чайник, телевизор, скоростной интернет. Есть кровать-домик для ребенка (можно убрать). Одну из комнат можно использовать как детскую или рабочий кабинет. В спальне кровать 160х200, с ортопедическим матрасом, в гостиной диван 140х200. Постельное бельё (подушки, одеяло всё новое). Кухня укомплектована необходимой посудой. Раздельный санузел, Большие окна в каждой комнате, застекленная лоджия 6 м с встроенными шкафами под хранение. С дизайнерским ремонтом, в современном стиле! Юг столицы с великолепной инфраструктурой и прекрасной транспортной доступностью! Метро Зюзино в 10 минутах пешком,Севастопольский проспект в 5. Остановка транспорта в минуте от дома по всем направлениям. Рядом государственные и частные детские сады и школы, поликлиника, Москворецкий рынок, магазины, рестораны., салоны красоты, аптеки. Пункт выдачи OZON в этом же доме. Старинная церковь в паре минут ходьбы. В квартире есть все, для комфортного проживания. Можно с детьми. Проживание с животными, рассматривается отдельно. Рады видеть аккуратных, порядочных людей, желательно семью. Арендная плата 100 000 руб. в месяц. ЖКУ включены По счетчикам арендатор оплачивает отдельно. Залог 100 000 р. Комиссию не берем и не платим.
Сделана перепланировка. Две спальни и кухня-гостиная. Качественные материалы при ремонте. Пол - ламинат и плитка. Стены - крашеные. Есть застеклённый балкон. На кухне вся необходимая бытовая техника: варочная панель, духовой шкаф, микроволновая печь, посудомоечная машина, стиральная машина. В гостиной зоне двуспальный диван, раздвигающийся обеденный стол. В комнатах кровати, комод, шкаф, кондиционер. Обустроенная отдельная гардеробная комната. Развитая инфраструктура района, по дороге к метро живописный сквер с фонтаном. Рядом Азбука Вкуса, ВкусВилл, Мираторг, стоматология, церковь, рестораны, поликлиника.
Современная, просторная квартира. Рядом с метро 4 мин. пеш. Нахимовский проспект. Евро ремонт, Чистый подъезд, консьерж. Кухня- встроенный кухонный гарнитур со всей бытовой техникой (посудомоечная машина, холодильник). Гостиная -диван два кресла, журнальный столик, телевизор, кондиционер. Спальный - двуспальная кровать, шкаф. Детская - диван, кресло, шкаф. Балкон застеленный. Санузел- душ кабина, стиральная машинка. Полы паркет+ плитка, Развитая инфраструктура. Без вредных привычек. ( Условие собственника). На очень длительный срок. Показ по договоренности. Просьба Звонить. Фото соответствует действительности.
Риелторам и различным помощникам, посуточникам, подборщикам -СТРОГО не беспокоить!!! Фирме для сотрудников не сдается! Без агентской комиссии. ВСЕ 3 комнаты изолированные. Очень тихие соседи. Сантехника новая. На фото всё видно, лучше не будет. До метро Зюзино 5 минут пешком. Лес рядом. Ждем вас на просмотр. ----- Примечание: у собственника могут быть дополнительные пожелания к жильцам - обсудите их в чате или по телефону
Трехкомнатная квартира ,чистая,с косметическим ремонтом, вся мебель и бытовая техника необходимая для комфортного проживания есть. Тихий, зеленый двор, чистый подьезд. До метро Профсоюзная десять минут транспортом.К сумме оплаты свет и вода по счетчикам.
Большая светлая квартира, проектная площадь 115 метров, большая спальня для родителей, детская спальня с двумя кроватями ( два яруса), кабинет проходной, ванная комната в джакузи, сауна электрическая, туалет с душем и стиральной машиной, просторный зал и зеркальный телевизор, огромный балкон на всю квартиру, большая кухня с барной стойкой и больших холодильником (распашные двери), есть посудомойка Сименс, чайник термос панасоник, плита двух режимная индукция и инфрокрасная, стеклянный стол на кухне.
Цены указаны с условием 100% оплаты и стандартной ипотеки. Прямая продажа от застройщика! Продается студия номер 750 общей площадью 29.6 кв.м. на 15-м этаже 24 этажного дома, Корпус 9. С отделкой White Box Max. Проект бизнес-класса SOUL от девелопера FORMA. До метро Сокол 10 мин пешком. Архитектура от британского бюро SimpsonHaugh. Благоустройство дворов — Gillespies и GAFA. Территория состоит из культурного парка и приватных дворов. Озеленение в эстетике лесного оазиса. Насыщенное благоустройство: прогулочные тропинки, релакс-зоны, пряный и сенсорный сады, развивающие детские площадки и воркауты. В центре проекта объект культурного наследия — общественное пространство Изофабрика, построенная в 30-х годах по проекту архитектора Георгия Гольца. Здесь будут располагаться мастерские для взрослых и детей, выставочные залы, коворкинги, образовательный центр, рестораны и кафе. Квартиры с панорамными окнами, мастер-спальнями, гардеробными, классическими балконами и лоджиями, видовыми террасами. Высота потолков от 2,9 до 3,5 м. В проекте 2 детских сада на 100 и 200 малышей. Клубная гостиная, фитнес-рум, детская игровая комната, дизайнерские лобби, подземный паркинг и келлеры.
Прoдаетcя oтличнaя двушкa распашeнка, oбщ. площадь 56 кв. м., жилaя 34 кв.м., большие изолирoванныe кoмнaты 19 и 15 кв.м., куxня 8 кв.м., пoтолки 3 метра, с/у рaздельный, балкoн. 4/5 эт. кирпичного дома 1958 г., ж/б пepекpытия, лифтa нет. Квapтиpa oчень чистaя, ремoнт был давнo. Oгрoмныe изoлирoванные кoмнaты, высoкиe потолки, большaя прoстopнaя куxня. Вcя нeобходимaя мебель, при необходимости можно вывезти. В квартире много антресолей, можно убрать на хранение целый зоопарк и придумать интересные проекты с встроенными шкафами и нишами. Очень чистый ухоженный подъезд, приличные соседи. До ст. метро и МЦД Тушинская 15 минут пешком. В минутной доступности парк, Москва-река, во дворе детский сад и школа. Собственность по наследству более 3 лет, юридически свободна, никто не прописан. Один взрослый собственник. Никто не прописан.



id:1224. Предлагаем Вашему вниманию двухкомнатную квартиру площадью 45.5 кв.м. (без учета лоджии) в панельном доме 1975 года постройки. Небольшая, но грамотно обустроенная кухня 6 кв.м., 2 раздельные комнаты (16.2 и 13 кв.м.), раздельный санузел с просторной ванной комнатой. Свежий ремонт в санузлах и большой комнате. Прекрасный зеленый и район, при этом в шаговой доступности абсолютно все для комфортной жизни в мегаполисе. Во дворе 2 государственных детских сада, 2 школы и поликлиника через дом, в 5 минутах МФЦ, церковь, Алтуфьевский заказник, 10 минут пешком до метро Алтуфьево. 1 взрослый собственник, никаких обременений и перепланировок, полная стоимость в договоре, альтернатива с нашей доплатой. Звоните! Помощь с одобрением ипотеки, бесплатная консультация юриста.
Сдам современную студию с сегодняшнего дня надолго. 15 мин до метро Сходненская пешком. Студия находится на территории бывшего ТМЗ. Вход через КПП по территории бывшего завода 600м. Лифт ходит до 6 этажа. 3 этажа пешком. Студия-апартаменты, прописка невозможна. Студия с косметических ремонтом, меблирована, сейчас там новый угловой диван. Развитая инфраструктура, парки, набережная. Оперативный показ. Звоните пожалуйста.
- Сдаётся 1 к.кв. Москва, Алтуфьевское шоссе, д. 86; 1983 г.п.6/22п; 37,5/18/8,5;, без балкона (лоджии); санузел раздельный (ванная); окна (ПВХ) двор. Вся мебель в комнате и на кухне. Техника: электроплита с духовкой, холодильник, стиральная машина, телевизор, микроволновка. Состояние отличное. - П о д ъ е з д, д в о р : чистый отремонтированный подъезд, Лифты: пассажирский 2 шт.; грузовой 1 шт.; пандус. Консьерж. Закрытая территория, шлагбаум. Детская и спортивная площадки. - Р а й о н: уютный зеленый район с развитой инфраструктурой, рядом: магазины, супермаркеты, кафе, рестораны, аптеки, парикмахерские , парки . - Т р а н с п о р т: 1 мин пешком м.Алтуфьево, остановки наземного транспорта рядом. - У с л о в и я: Длительный срок. Арендаторы: платежеспособные, без вредных привычек (не курить). Рассмотрят одного человека или семейную пару без детей и животных Группам сотрудников, рабочих, командировочных квартира не сдается . Комиссия 60%. Залог 100%. 55000 руб./месяц плюс свет и вода по счётчикам. - - - - У Арендодателей имеются дополнительные условия к арендаторам, которые обсуждаются по телефону



2-комн.кв. · 52,2 м² · 10/15 этаж
Впервые сдаётся просторная 2-комнатная квартира с раздельным санузлом, лоджией и евроремонтом. Без депозита! Её можно посмотреть когда Вам удобно: бронируете время, забираете ключи и спокойно осматриваете. Если всё понравится, договор подпишем онлайн и будем поддерживать Вас на всех этапах аренды. Есть вся необходимая мебель и техника для комфортного проживания: - Кухонный гарнитур; - Варочная панель; - Стиральная машина; - Духовой шкаф; - Посудомоечная машина; - Кондиционер; - Микроволновка; - Холодильник; - 2 Телевизора; - Проведён интернет. Полы - ламинат и плитка. Окна выходят во двор, есть бесплатная парковка. Собственник готов заселить не более 4 взрослых жильцов с детьми. Можно с небольшим домашним питомцем. Дом расположен в районе с развитой инфраструктурой, рядом находятся: - ТЦ Час пик; - Этнографическая деревня Бибирево. Также в пешей доступности - школа, детский сад, продуктовые магазины, кафе, медицинские центры, бассейн, аптеки, салоны красоты, пункты выдачи маркетплейсов, фитнес-клуб. До м. Медведково и м. Бибирево - 12 минут на общественном транспорте.
Новостройка! Продается 1-комн. кв-ра площадью 42,6 кв.м, (Корпус 1.1.3, Секция 3) 2 этаж 18-этажного дома в Онежский вал от ПИК. Квартал "Серии плюс" строится на севере Москвы, в 10 минутах пешком от станции метро "Селигерская" и МЦД "Моссельмаш". Проект понравится всем, кто привык к комфортной жизни и ценит возможность оставаться в ритме большого города и быстро добираться до центра столицы. Концепция проекта связывает квартал с природой Русского Севера. В проекте три акцентные башни с террасами и контрастными фасадами из матовой плитки и металла. Корпуса разной этажности повторяют силуэты хвойных деревьев, а архитектурные элементы на фасадах — напоминают природные рисунки скал. Блестящие алюминиевые панели в тон матовой плитке создают игру текстур на верхушках корпусов. Благодаря продуманности архитектуры, в квартирах есть панорамные окна в пол, открытые, французские, угловые балконы и террасы. Собственная продуманная инфраструктура проекта сделает жизнь в квартале удобной и поможет сэкономить время на бытовых делах. На территории мы построим свои детский сад, школу и поликлинику. А на первых этажах квартала откроются магазины, кафе, пункты выдачи и полезные сервисы. Для занятий спортом рядом с домом появится спортивный комплекс площадью 5000 м2 с залами для тренировок и просторным бассейном. А закрытый двор-парк и широкий пешеходный бульвар станут местом для прогулок и спокойного отдыха. #d18.01# Артикул 1039651 (Застройщик ООО СЗ "ПрометейСити")



3-комн.кв. · 60 м² · 7/9 этаж
Продаётся уютная трехкомнатная квартира площадью 60 квадратных метров на седьмом этаже девятиэтажного дома! Дом окружен развитой инфраструктурой: рядом находятся школа, детский сад, торговый центр, фитнес-клуб и парк, что делает расположение особенно привлекательным для семей с детьми. Квартира в хорошем жилом состоянии, жилая площадь составляет 43 квадратных метра, кухня 8 квадратных метров. Санузел раздельный, что добавляет удобства при проживании нескольких человек. Из окон открывается приятный вид на двор и улицу, во дворе дома обустроены детская и спортивная площадки, где ваши дети смогут активно проводить время. Расположение дома также удобно тем, что всего в 10 минутах пешком находится станция метро Яхромская, а до станции Селигерская можно дойти примерно за 22 минуты. Рядом расположены популярные кафе и рестораны, такие как "Бро", "Гость" и киоск фастфуда, а также крупные супермаркеты "Перекрёсток", где всегда можно приобрести свежие продукты и всё необходимое для комфортной жизни. Приглашаем вас оценить все преимущества данной квартиры лично! Она ждёт своих новых владельцев, готовых оценить комфорт и удобство проживания в ней.















































































