


От года, комм. платежи включены (без счётчиков), без комиссии, залог 300 000 ₽
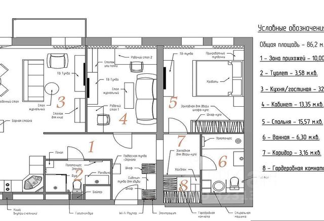
Лот 552558. Бонус коллегам 50%! Предлагается стильный двухэтажный пентхаус в современном ЖК Riverdale Apartments. Планировка: большая кухня - гостиная, две спальни, гардеробная и два санузла. Высота потолков 3,5 метра. Апартаменты оборудованы современной техникой и всем необходимым для проживания. Огороженная и охраняемая территория комплекса. Отдельная входная группа с персональным доступом только для жильцов. В пользование резидентам предоставляется спортивный зал. Подземный паркинг, машиноместо оплачивается отдельно. В квартире: Полностью меблированная, Посудомоечная машина, Стиральная машина, Бойлер, Душевая кабина, Теплые полы, Спутниковое/кабельное телевидение, Кондиционер, Охрана, Интернет, Видовая квартира, Можно с детьми, Можно с животными, Европланировка, Ванна, Интерьер в современном стиле, Гардеробная, Лифт, Мебель в комнатах, Телефон, Телевизор, Мебель на кухне, WE SPEAK ENGLISH. PLEASE FEEL FREE TO CONTACT US. Сдается 3-комнатная квартира с животными в районе Даниловский в Москве.




























































































