512 864 ₽/м²
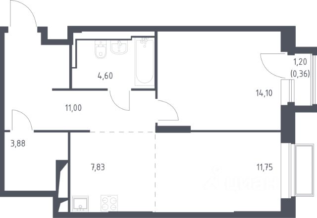
Продаётся 1-комн. квартира площадью 42,3 кв.м на 32 этаже 33 этажного дома (Корпус 2.4, Секция 1) проекта ПИК Кольская 8. Светлый просторный подъезд на уровне земли, функциональная планировка, большие окна, c отделкой. Жилой квартал "Кольская 8" строится в Бабушкинском районе, в 8 минутах пешком от метро "Свиблово". До Ярославского шоссе на машине — 8 минут, а до ТТК — 16. До нескольких парков и набережной реки Яузы можно дойти пешком. Проект состоит из корпусов с подземными паркингами, школа и детский сад. В зелёных дворах-парках будут места для отдыха, современные детские и спортивные площадки. На первых этажах откроются магазины, кафе и другие сервисы — за кофе и свежим хлебом к завтраку можно будет просто спуститься на лифте. Рядом с кварталом есть всё для комфортной жизни: в 8 минутах неспешным шагом — благоустроенные парки Яуза и Свиблово, а до Ботанического сада можно доехать за 7 минут на машине. Недалеко от проекта находятся детские сады, школы, поликлиники, магазины и торговые центры. Артикул 834076 (Застройщик АО "СПЕЦИАЛИЗИРОВАННЫЙ ЗАСТРОЙЩИК СТРОЙДЕТАЛЬ")













































































