


462 673 ₽/м²
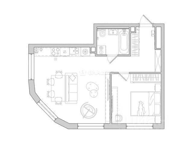
Цена указана с учётом скидки при 100%-й оплате, несубсидированной ипотеке, рассрочке (кроме программы "Рассрочка 0%"). В активно развивающемся районе на юго-востоке столицы продается 2-комнатная квартира площадью 49,5 кв.м без отделки.. Квартира расположена на 39 этаже 45-этажного этажного корпуса 1 в жилом комплексе комфорт-класса Левел Нижегородская (компания Level Group/Левел групп). Отличная транспортная доступность - 10 мин. пешком до станции метро, МЦД-4, БКЛ и МЦК "Нижегородская"; - 13 мин. пешком до станций метро "Андроновка" и "Перово"; - 10 мин. на авто до ТТК; - 14 мин. на авто до Садового кольца. Благоустройство Благоустроенная территория комплекса делится на внешнюю и внутреннюю. Внутренняя часть - это закрытый двор 0,9 га, где обустраиваются детские площадки для разных возрастных групп, беседки для отдыха и работы, несколько спортивных зон, включая зоны для уличных тренировок и лужайку для бадминтона. Здесь же появится ухоженный луг с прогулочными маршрутами. Рядом с жилым комплексом будет создан ландшафтный парк площадью 2,4 га. В парке будут высажены высокие деревья, луговые травы и кустарники, благоустроены лаунж-зоны у пруда, дорожки для бега и прогулок. В центре парка предусмотрена событийная площадь, рядом расположатся дополнительные спортивные и детские площадки, а также зона для выгула домашних питомцев. Внутренняя инфраструктура Дома жилого комплекса будут оснащены коммерческими помещениями, где откроются все необходимые сервисы: магазины, аптеки, салоны красоты, кофейни, службы доставки и многое другое. Комфорт - это когда всё рядом. Кроме того, на территории жилого комплекса Левел Нижегородская предусмотрен подземный отапливаемый паркинг. Этап 1 включает 335 машино-мест и 143 кладовых помещения для хранения сезонных вещей. Технологии и безопасность На территории всех общественных зон постоянно ведется видеонаблюдение и предусмотрен высокоскоростной вайфай. Подъезды, паркинг и внутренний двор оснащены системой контроля доступа. Для удобства жителей создано мобильное приложение, позволяющее связаться с управляющей компанией, осуществлять удаленное управление видеодомофоном или просмотреть изображение отдельных видеокамер по заявке. Для безопасного перемещения по этажам и комфортного спуска в паркинг будут установлены современные лифты от компании BLT Brilliant Elevator. Скорость лифтов - 1,6 - 2,5 м/с. Особенности - Архитектура от экспертов из бюро ARCH(E)TYPE; - Разноуровневая застройка - от секций средней этажности до высоток в 45 этажей (этап 1); - Окна шириной до 2,2 метров (этап1) с видами на Останкинскую башню, Измайловский парк, "Москва-Сити" и Кусковский лесопарк; - Лобби с окнами в пол и потолками от 3,4 метров, оснащенные консьерж-сервисом; - Более 35 видов планировок, включая редкие форматы. Артикул 1-456.






















































































































