


271 644 ₽/м²
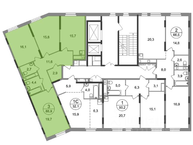
Продается трехкомнатная квартира без отделки в городе-парке "Переделкино Ближнее". Общая площадь квартиры - 86,4 кв. м, этаж 2 из 17. Срок сдачи - 3 квартал 2026 года. Тип дома - монолитный. ТОЛЬКО ДО 30 АПРЕЛЯ выгодные условия на приобретение квартиры в ипотеку или рассрочку. Звоните - и мы подберем оптимальное предложение под ваш запрос! Город-парк "Переделкино Ближнее" расположен в 8 км от МКАД по Боровскому шоссе. ТРАНСПОРТНАЯ ДОСТУПНОСТЬ: - 10 минут пешком до МЦД-4 "Мичуринец" - 15 минут пешком до станции метро "Рассказовка" Солнцевской линии - 10 минут на машине до станции метро "Филатов Луг" Сокольнической линии - 30 минут до центра Москвы - Прямой выезд на дорогу Солнцево-Бутово-Варшавское шоссе, минуя жилую застройку всего ЖК БЛАГОУСТРОЙСТВО: 18 фаза строительства уникальна своим расположением - в шаговой доступности парк на Лукинской улицы, река Алёшинка. На территории 18 фазы строительства будут построены 2 монолитных жилых корпуса повышенного комфорта разной этажности 7, 17 этажей. А также многоуровневый паркинг на 300 м/мест. Вход в жилую часть корпусов каждой секции осуществляется с двух сторон - с наружного контура жилого дома и со стороны дворового пространства, предусмотрен безбарьерный доступ. ВНУТРЕННЯЯ ИНФРАСТРУКТУРА: В рамках данной фазы, для жителей предусмотрено создание пространства, свободного от машин - благоустроенные огороженные дворы с современными детскими и спортивными площадками, разделенными на зоны по возрастам. На территории проекта есть все необходимые объекты социальной и бытовой инфраструктуры: детские сады, школы, магазины, паркинги, аптеки, поликлиники, пожарная часть и др. АВТОРСКИЙ ДИЗАЙН: Современный монолитный дом переменной этажности 7 и 17 этажей. На фасаде предусмотрены корзины для установки кондиционеров. Входные группы домов выполнены по авторскому дизайну. Колясочные располагаются при входе, велопарковка на -1 этаже.


























































































































