Номер в базе: 12410395.
Продаётся стильная 3-комнатная квартира с дизайнерским ремонтом в одном из самых комфортных и развивающихся районов Москвы!
Адрес: Левобережная улица, 4к8
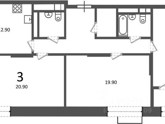
Квартира общей площадью 72,5 м² (+ 3,1 м² - площадь балкона) расположена на 16 этаже современного 19-этажного дома. Это идеальный вариант для семьи, которая ценит комфорт, продуманную планировку и удобное расположение.
О квартире:
— Выполнен качественный дизайнерский ремонт в современном стиле
— Просторная жилая площадь — 47 м²
— Удобная планировка: три изолированные комнаты (21,9 / 10,9 / 14,2 м²)
— Уютная кухня 8,1 м²
— Балкон 3,1 м² с приятным панорамным видом с высокого этажа
— Квартира полностью готова к проживанию: остаётся вся необходимая техника (холодильник, телевизор, вытяжка, электрическая плита, духовой шкаф)
О доме и территории:
— Наземный паркинг рядом с домом
— Открытый благоустроенный двор
— Детская площадка
— Рядом спортивные зоны и площадки для выгула собак
Транспортная доступность:
— Всего 5 минут пешком до станция метро Беломорская
— 8 минут пешком до станция метро Ховрино
— Удобный выезд на основные магистрали города
— Близость к транспортному узлу "Ховрино", объединяющему метро, ж/д и автовокзал, что делает передвижение по городу и за его пределы максимально удобным
Район и инфраструктура:
Квартира расположена в районе Левобережный район — одном из зелёных и благоустроенных районов севера столицы. Это спокойная жилая локация, идеально подходящая для комфортной жизни.
Особое преимущество — близость к воде и природе. В пешей доступности находится благоустроенный парк Левобережный на берегу Химкинского водохранилища — популярное место отдыха с пляжем, прогулочными зонами и современной инфраструктурой. Здесь можно гулять, заниматься спортом или проводить время с семьёй.
Район активно развивается и благоустраивается: обновляются дворы, создаются новые зоны отдыха, улучшается транспортная доступность и инфраструктура.
Инфраструктура рядом:
— Магазины, супермаркеты и аптеки
— Школы и детские сады
— Поликлиники и медицинские центры
— Кафе и рестораны
— Современный торговый центр Discovery Mall
Отдельно стоит отметить реконструкцию Центральный Московский ипподром — крупного городского проекта, который уже в ближайшие годы превратится в современное общественное пространство.
Территорию обновят с сохранением исторической ценности, дополнив её прогулочными зонами, зелёными пространствами и инфраструктурой для отдыха.
После завершения работ ипподром станет новой точкой притяжения района: здесь появятся комфортные зоны для семейного досуга, прогулок с детьми, спорта и проведения мероприятий, что заметно повысит качество жизни и привлекательность локации.
Преимущества квартиры:
— Отличное сочетание цены, качества и расположения
— Готова к заселению без дополнительных вложений
— Перспективный район с ростом стоимости недвижимости
— Подходит как для собственного проживания, так и для сдачи в аренду
Код пользователя: 89556 3-комнатная квартира с балконом в районе Ховрино в Москве.