


258 929 ₽/м²
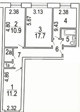
Арт. 130001430 Трехкомнатная квартира, с шикарным расположением в районе! Расположенная по адресу: г. Москва, ул. 3-я Владимирская, д. 6, 1/9 этажность. Общая площадь 56 м2. ------------------------------------------------- -------------------------------------------------- ------------------ ИНФРАСТРУКТУРА: - Транспортная доступность: Удобный выезд на основные городские магистрали: МСД, Шоссе Энтузиастов, СВХ. До м. Перово 15-20 минут пешком, 5 минут на автомобиле. Остановка общественного транспорта 2 мин. от дома, - Московская международная школа, учебное подразделение Планета Солнце. - Лицей МПГУ - Измайловский лесопарк - Спортивный комплекс "Авангард" - Сетевые магазины: ВкусВилл, Красное&Белое, Магнит и т. д - Парикмахерские, Вет. клиника, различные кафе, рестораны, аптеки, пункты выдачи - Зоны отдыха, скверы, детские и спортивные площадки. ------------------------------------------------- -------------------------------------------------- ------------------ КОММУНИКАЦИИ: - Дом кирпично конструкции, построен в 1963 году - Обслуживается управляющей компанией, ухоженные подъезды, один пассажирский лифт. ------------------------------------------------- -------------------------------------------------- ------------------ КВАРТИРА: - функциональная планировка - изолированные комнаты - требует ремонта - мебель будет выкинута ------------------------------------------------- -------------------------------------------------- ------------------ ДОКУМЕНТЫ: - 3 собственника; - приватизация 2022 года; - полная стоимость в договоре; - без долгов и обременений. ------------------------------------------------- -------------------------------------------------- --------- ЛЕГКО КУПИТЬ: ипотека торг сертификат материнский капитал наличные без комиссии при покупке Гарантия юридической чистоты сделки от компании! Звоните! Записывайтесь на показ объекта прямо сейчас! Готовый, собранный пакет документов для ипотеки. Ответим на все Ваши вопросы по чистоте сделке по телефону, предоставим документы для ознакомления по запросу! Запишитесь на просмотр, звоните, такие варианты квартир уходят быстро оперативные показы в удобное для Вас время. Не принимайте решение о покупке, не посмотрев эту квартиру!!! Станьте собственником замечательной квартиры!















































































