Первичная продажа



8 акций
Онлайн-бронирование
сдача ГК: 2 кв. 2027 года
Шоссе Энтузиастов
17 минут пешком
25 494 210 ₽
-6%27 121 500 ₽
414 540 ₽/м²
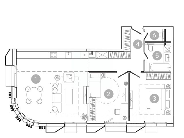
Продается 3-к квартира площадью 61.5 кв.м. на 3-м этаже
УНО Соколиная Гора — новое поколение жилой недвижимости в историческом районе Москвы в непосредственной близости от Измайловского парка. Динамичная и современная архитектура формирует доминанту района и становится центром визуального притяжения, гармонично cочетая баланс между урбанистической энергией современной Москвы и спокойствием природы. Благодаря уникальной локации вся Москва будет для вас как на ладони удобные транспортные развязки, выезды на ключевые магистрали, метро и МЦК в шаговой доступности.




































































































































































