


396 617 ₽/м²
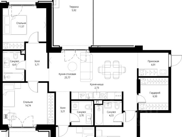
Прямая продажа от застройщика. Продаётся 4-комнатная квартира общей площадью 118.66 м² с предчистовой отделкой в ЖК City Вау, квартале Cliff, на 2-м этаже 15 этажного дома. Cliff by City Вау - это пять клубных домов на первой линии озелененной набережной Реки Москвы. Со стороны южного фасада, обращенного к воде, находится прогулочная зона, организующая входы в жилые секции. Вдоль северного фасада пятой очереди проходит общеквартальный озелененный бульвар с тематическими зонами и дворовыми территориями. В каждой секции предусмотрены сквозные входные группы, а между секциями - проходы для пешеходов, связывающие набережную и бульвар с местами для отдыха внутри квартала. Данное решение позволяет сделать комплекс с доступной и безбарьерной городской средой. Со стороны бульвара у каждой башни для жильцов комплекса расположены приватные потайные дворики, огороженные живой изгородью и интегрированные в общий ландшафт бульвара. Из-за перепадов высот по рельефу, уровень бульвара возвышается относительно уровня дворов, что делает их еще более камерными. Доступ на территорию со стороны бульвара осуществляется через калитку. В каждом здании комбинируется максимальное количество и разнообразие форматов квартир: от видовых квартир с зелеными террасами и лоджиями до квартир малого формата. Входные группы 1-ых этажей поистине уникальные пространства. Лобби имеют высоту потолков 5 - 6 м и панорамные окна. В отделке используются дорогие натуральные материалы:шпон дерева, мрамор, металл и др. Одноуровневый паркинг с дополнительными функциями: - Велопарковка, - Места для подкачки шин, - Зоны погрузки и разгрузки, - Зарядки для электрокаров, - Кладовыми помещениями. Концепция жилого комплекса City Вау - настоящий город в городе с отлично развитой инфраструктурой и собственной благоустроенной набережной. На территории жилого комплекса расположено пять кварталов - Atlantic, Pacific, Indian, North, Cliff. Жилой квартал City Вау отличается оригинальной концепцией и выделяется среди других проектов такими характеристиками как: - Архитектура, - Виды из окон, - Природное окружение, вызывая гордость у жителей и восхищение у прохожих. Вся жизнь района Покровское-Стрешнево строится вокруг водных объектов: - Пойма реки Сходни с уникальной экосистемой, - Речка Химка и Химкинское водохранилище, - Москва-река, - Канал имени Москвы. Кругом вода, и местные с удовольствием этим пользуются. А сразу за рекой - центр водного спорта в Строгино с вейк-парком и яхт-клубами. Помимо воды, здесь очень много зелени: - Рядом Сходненский ковш памятник природы, естественный амфитеатр глубиной 40 метров; - Парк при усадьбе Братцево с фруктовым садом; - Дубовая роща "Маяк", - Алешкинский лес; - Лесопарк Покровское-Стрешнево с пляжами и бобрами. Главные транспортные артерии района: - Волоколамское шоссе, - Таганско-Краснопресненская линия метро и МЦД-2. Всего за 20 минут можно добраться до центра на машине или метро, а МЦД связывает ЖК City Вау с




























































































































