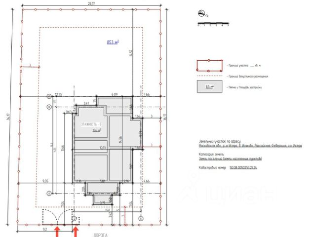
ID 9077. Дом для родителей в рассрочку! Без процентов и переплат! Надежный кирпичный дом 234 м2, расположен на возвышенности, два этажа, участок правильной формы 10,5 соток — идеальное предложение для тех, кто ценит комфорт и качество. Планировка: - 1 этаж: просторная гостиная с выходом на террасу (открытая зона для общения и приёма гостей), уютная кухнястоловая с панорамными окнами, спальня на первом этаже, санузел, холл, тамбур, котельная с отдельным входом. - 2 этаж: спальня с эркерным окном и видом на озеро, кабинет , гардеробная, ванная, детская спальня, постирочная. - Подходит для постоянного проживания, удачная планировка позволяет использовать дом под различные сценарии жизни. Ключевые преимущества: - Панорамный вид на главное озеро. - Большая территория 10,5 соток правильной формы — удобство использования и ландшафтного оформления. - Стены -качественный материал Poroterm -теплая керамика, что позволяет сохранять тепло зимой и прохладу летом. -Фундамент- монолитная плита из бетона повышенной прочности. Выполнена полная гидро- и теплоизоляция фундамента, что защищает от возникновения сырости и плесени и гарантирует сохранность ремонта на десятилетия. Все перекрытия и лестницы так же выполнены из монолита повышенной прочности. -Кровля- утепленная кровля, утеплитель Технониколь, трехслойная гидроизоляционная мембрана Faracs, пароизоляционная мембрана, акриловый скотч по контуру внутри дома. -Окна высокоэффективные, с повышенной шумоизоляцией и влагонепроницаемым профилем 75мм, с атермальным напылением от ультрафиолета, что позволяет держать в доме заданную температуру, и не зависеть от внешних факторов. Заводская тонировка позволяет сохранять приватность, тк со стороны улицы окна непрозрачные, но прозрачные изнутри дома. -Входная бронированная дверь с термоизоляцией и шумоподавлением. -Откатные ворота с электроприводом и фотоэлементами, для комфортного использования - все на пульте управления. Облицовка- натуральный клинкерный кирпич, надежный и эстетичный, в эксплуатации не требует дополнительных затрат по уходу, десятилетиями сохраняет первозданный вид. Участок - выровнен и отсыпан грунтом. Жизнь в поселке "Павловы Озера": - Удобный подъезд: 14 км от МКАД по Новорижскому шоссе. - Большое озеро с пляжем и прогулочная набережная — идеальное место для семейного отдыха и спорта. - Аллеи и лесопарк —всегда свежий воздух, прогулки, безопасная среда для детей. -Богатая инфраструктура пгт Нахабино: здесь есть взрослая поликлиника ФГБУ 3 ЦВКГ им. А.А. Вишневского Минобороны РФ, центр молекулярной диагностики CMD, гимназия 4 имени Героя России А.В. Водопьянова, школа фигурного катания Марии Орловой, теннисный клуб Nahabinotennisclub, спортивный комплекс "ФОК Нахабино" который предлагает разнообразные виды спорта: плавание, тренажерный зал и хореографические занятия.







































































































