Только на Циан
Новорязанское шоссе
53 км от МКАД
24 500 000 ₽
Продаётся просторный, светлый ,тёплый,уютный дом для круглогодичного проживания. Состояние дома соответствует фото.
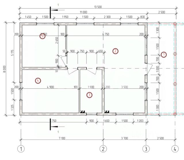
Функциональная и комфортная планировка:
1 этаж: просторная кухня -гостинная, большая гардеробная,санузел, бильярдная зона , бойлерная, комфортный выход в гараж.
2 этаж: 4 комнаты , санузел., балкон. Тёплые полы.
Коммуникации: магистральный газ,электричество 3 фазы , 15 кВТ, септик.
Превосходная мангальная зона со всем необходимым, терраса -прекрасное место отдых и зимой и летом.
На участке 19 соток расположены БАНЯ (!) , Бассейн ( требует ремонта ).Участок ухоженный, правильной формы, высажены плодородные деревья, ягодные кустарники и цветы, для любителей есть грядки...
Гараж на 2 автомобиля .
Недалеко от КП есть село Заворово с развитой инфраструктурой ( школа, детский сад, магазин Пятерочка, ,Храм, родник с водой. В непосредственной близости расположены водоёмы для отдыха и рыбалки , также для любителей охоты на грибы и ягоды есть леса. Прекрасное место, для того , чтобы наслаждаться природой , прогулками и чистым воздухом.
Удобное транспортной сообщение с Москвой и г. Бронницы - 5-7 минут выезд на А-107, 50 минут до МКАД на автомобиле.
До ст. метро Котельники 50 минут на автомобиле.
До г. Бронницы с развитой инфраструктурой 15 минут на машине.
Дом расположен на охраняемой территории жилого посёлка. Ворота , охрана , видеонаблюдение по периметру и на проездных улицах. Дороги посёлка асфальтированы .Имеются магазины, парикмахерская, шиномонтаж(автосервис), детская площадка, часовня.
Оперативный показ!Быстрый выход на сделку !Звоните!










































































