


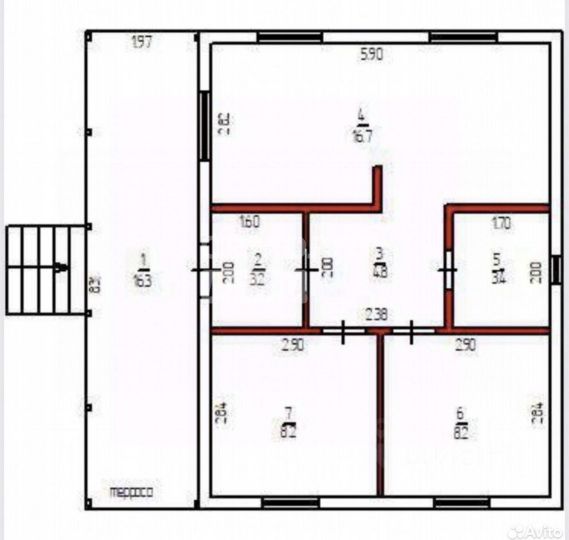
Продается просторный дом 295.6 м² в коттеджном поселке бизнес-класса Фоксфорд Участок 12,1 соток у леса | 40 км от МКАД по Калужскому шоссе Расположение: - Московская область, Наро-Фоминский округ, КП Фоксфорд. - Транспортная доступность: - 28 мин до станции МЦД-4 Апрелевка, 14 мин до ж/д станции Селятино. - Рядом: Новоглаголево, Шишкин Лес, Красная Пахра, Троицк. О доме: - Площадь: 295.6 м² на участке 12,1 соток. - Конструктив: - Фундамент: буронабивные сваи + лента с монолитной плитой. - Стены: газоблок D500 с утеплителем 50 мм, клинкерная плитка White Hills. - Перекрытия: ж/б плиты (1 этаж), деревянные балки с минватой 20 см (2 этаж). - Кровля: мягкая черепица. - Коммуникации: - Центральные газ, вода, канализация. - Электричество 15 кВт. Планировка: - 1 этаж: Входная группа с гардеробной и постирочной, кухня-столовая-гостиная с кладовкой и выходом на террасу, спальня, общий санузел. - 2 этаж: На втором этаже расположены общий санузел и четыре комнаты. 1. Спальня. 2. Спальня со своим санузлом. 3. Спальня с гардеробной. 4. Мастер-спальня с двумя гардеробными и санузлом Отделка и оснащение: - Предчистовая отделка (вайт-бокс). - Системы подогрева полов. - Полная готовность к финишной чистовой отделке. Участок и поселок: - Участок граничит с лесом (есть прямой выход). - На участке построена крытая парковка на 2 машиноместа с хозблоком, в котором размещена котельная. - Инфраструктура КП: - Детская и воркаут-площадки, речка. - Ухоженные газоны, липовые аллеи. - Охрана, видеонаблюдение. - Подземные коммуникации. - Рядом: магазины, кафе, школы, поликлиники, ТЦ в Селятино, Апрелевке, Троицке. Почему этот дом? - Просторные светлые помещения с панорамным выходом в сад. - Энергоэффективность: утепление, современные инженерные системы. - Тишина, приватность и быстрый доступ к Москве (55 мин до центра). Звоните, чтобы увидеть дом своей мечты! Идеально для семьи, ценящей природу, комфорт и статусный образ жизни. Купить дом берегу реки Киевское шоссе.






































































































































