


336 907 ₽/м²
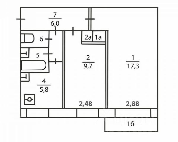
Арт. 134792923 Продаётся уютная 3комнатная квартира в районе Котловка (ЮЗАО) О квартире Этаж: 1й. Общая площадь: 65,3 кв. м. Планировка: просторная гостиная, две спальни, кухня, раздельный санузел. Особенность: в хозяйской спальне — выход на остеклённую лоджию. Состояние: качественный евроремонт, без перепланировок. Окна выходят во двор, на две стороны — западную и восточную (много света в течение дня). О доме Серия: II68 (блочный), 1973 год постройки — толстые стены надёжно защищают от уличного шума и холода. 12 этажей, 3 подъезда, 147 квартир. В подъезде — 2 современных лифта: пассажирский и грузопассажирский. Обслуживание: управляющая компания "Жилищник". Безопасность Система видеонаблюдения в местах общего пользования. Домофон на входе в подъезд. Двор и парковка Две детские площадки для разных возрастов. Зоны отдыха со скамейками и зелёными насаждениями. Рядом — наземная парковка со шлагбаумом (безопасность и удобство для автовладельцев). Локация и природа Район Котловка (ЮЗАО Москвы) — спокойный и зелёный: парки "Долина реки Котловки", "Сосенки" и "Лесопарк Коробковский сад" — отличные места для прогулок и спорта; исторические достопримечательности: усадьба ПрозоровскихБекетовых и усадьба на Перекопской. Транспорт Лёгкий выезд на Севастопольский проспект и Нахимовский проспект — ключевые магистрали района. Остановки наземного общественного транспорта рядом с домом — удобная связь с другими районами без пересадок на метро. Станция метро "Нахимовский проспект" — в 14 минутах ходьбы. Инфраструктура В шаговой доступности: образовательные учреждения: корпуса 1 и 2 Школы 626, гимназия "Газпром", Частная Британская международная школа 5, несколько корпусов детских садов 626 и ЧДС "Развитие XXI век"; музыкальная школа имени Н. Мясковского; школа балета "Гармония"; поликлиники: городская поликлиника 2 (филиал 6 для взрослых), детская поликлиника 69; сетевые супермаркеты и магазины у дома; спортивный комплекс "Кант". Финансы и документы Собственников: 2. Без обременений и долгов. Возможна ипотека. Полная стоимость в договоре куплипродажи. Эта квартира — отличный выбор как для личного проживания, так и для инвестиций: надёжность дома, развитая инфраструктура и удобная транспортная доступность обеспечат комфорт и ликвидность объекта. Готовы показать квартиру в удобное для вас время. Свяжитесь с нами для просмотра!










































































