Первичная продажа



Семейная ипотека 3,5%
ещё 8 акций
С отделкой
Онлайн-бронирование
дом сдан
Ботанический сад
11 минут пешком
19 550 215 ₽
649 509 ₽/м²
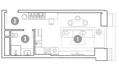
Студия площадью 30,1 кв.м., расположенная на 40 этаже 53-этажного небоскреба бизнес-класса это именно то, что вы ищете!
AFI Tower — это не просто жилой комплекс. Это место, где каждая деталь заботливо продумана, чтобы сделать вашу жизнь удивительной и комфортной.
Транспортная доступность
- AFI Tower расположен близко к проезду Серебрякова, что обеспечивает быстрый доступ к Третьему Транспортному Кольцу и МКАД. За 15 минут можно легко добраться до ключевых транспортных магистралей в зависимости от дорожной ситуации.
- В пешей доступности находятся станции метро "Свиблово" и "Ботанический сад" — это дает возможность жителям легко перемещаться по городу. Рядом также расположена станция Московского центрального кольца у "Ботанического сада".
Архитектура:
- Башня AFI Tower привлекает своим смелым архитектурным решением. Фасад, выполненный в виде мягкой волны, делает здание узнаваемым и уникальным в контексте стандартных высоток. С высотой в 182,4 метра, она становится неповторимой доминантой в Свиблово.
Внутренняя инфраструктура:
- Лобби AFI Tower выделяется современным дизайном, высокими потолками от 2,9 м до 3,3 м и использованием качественных материалов. Это визитная карточка здания, предоставляющая посетителям первое впечатление. Внутреннее пространство продумано для комфорта и функциональности.
Характеристики квартир:
- Здесь каждая квартира — уникальная история. От 19 до 116 м² площади, три варианта отделки — светлый, темный или white box, чтобы ваш дом отражал ваш вкус и стиль. Принимайте решение не просто о покупке жилья, а о создании своего собственного уютного уголка.
Удобства внутри AFI Tower:
- В самом доме целый мир удобств и развлечений. Ресторан, библиотека, прачечная и коворкинг — каждое место наполнено энергией и возможностями. Вечерами, уютная кинозона с кинопроектором и настольными играми создает атмосферу веселья и отдыха.
Экология и окружение:
- Жить в AFI Tower — значит быть частью уникального окружения. Близость к пруду и зеленому скверу придает местности неописуемое очарование. Вид из окон на Москву, ВДНХ и парки создают вдохновляющий пейзаж. А безопасность и удобство парковки добавляют приятные моменты к вашему образу жизни. Продается квартира-студия в новостройке в районе Свиблово в Москве.











































































