319 540 ₽/м²
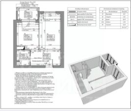
ЖК Бристоль. Предлагаем к продаже уникальный формат видовой квартиры-пентхауса. Квартира расположена на 4-м этаже 4-х этажного монолитного дома. Высокие потолки в 5.5 метров создают впечатление простора и свободы и открывает перед вами возможность создать интерьер вашей мечты с нуля. Дизайн-проект квартиры предполагает возведение 2-го этажа, что увеличит общую площадь квартиры на почти на 17 м2 (общая площадь квартиры составит ориентировочно 60.5 м2) На первом этаже при этом может быть расположена просторная зона кухни-гостиной, гардероб и совмещенный санузел, на втором этаже кабинет, спальня и просторный санузел. Дом оснащён грузовым лифтом и безбарьерным входом в подъезд на уровне земли (без ступенек, пандусов или подъёмников) что делает его удобным для семей с детьми и людей с ограниченными возможностями. В доме имеется газовое оборудование, что значительно экономит платежи за горячую воду и отопление. Для владельцев автомобилей предусмотрена наземная парковка. Близость к аэропорту Внуково (10 минут на автомобиле) позволяет быстро добраться к зоне вылета. До ближайшей станции метро (Рассказовка) курсируют рейсовые автобусы. Документы готовы к сделке, ипотека возможна. Квартира без обременений, поэтому можно быстро переехать и начать ремонт. Приглашаем вас на просмотр этой просторной и светлой квартиры! Записывайтесь на удобное для вас время, чтобы оценить все преимущества лично.




















































































