362 829 ₽/м²
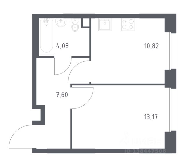
Продается уютная и функциональная студия в жк Эдальго 2013 года постройки в 15 минутах пешком от метро Коммунарка. В отделке студии использованы только современные, высококачественные и экологичные материалы. Студия укомплектована всей необходимой мебелью(изготовленной под заказ) и техникой ведущих производителей для комфортного проживания(много пространства для хранения вещей). Входная группа с дизайнерским ремонтом. Планировочное решение: просторная кухня-гостиная, ванная комната, вместительная гардеробная, прихожая. Отличительными чертами комплекса является функциональное зонирование территории, создание целостной жилой среды с комплексной инфраструктурой. Архитектура квартала обусловлена задачей создания качественной городской среды от красивых зданий до ландшафта и уличного освещения. Площадь внутреннего двора, свободная от машин, естественное озеленение. В парке устроены беседки для отдыха с WI-FI и детские игровые площадки. В комплексе выразительность фасадам придают яркие акценты дизайнерских панелей, балконы с цветными ограждающими конструкциями, элементы архитектурного бетона. Декоративные панели фабрики Мажино использованы и в оформлении интерьеров входных групп. Один взрослый собственник, основание ДДУ от 2011 года, без обременений, документы к сделке готовы.


















































































