


От года, комм. платежи включены (без счётчиков), без комиссии, залог 280 000 ₽
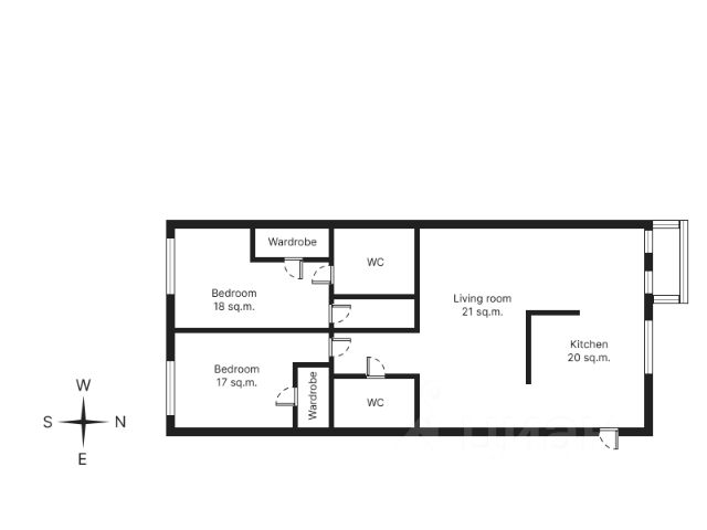
Лот 97198. Максим Горшков. Эксклюзив. ЖК Смоленская застава. Отличная 3-комнатная квартира в кирпичном доме. 8 / 11 этаж. Спален: 2, санузлов: 2. Общая площадь: 117.2 кв.м. Потолки 3 м. Ремонт в современном стиле. Квартира полностью с мебелью, вывоз обсуждается. Огороженная, охраняемая территория. Подземный паркинг, машиноместо оплачивается отдельно. Открытый вид, много света. Есть балкон. Есть лоджия. Есть гардеробная комната. В наличии: посудомоечная машина, холодильник, кондиционер, душевая кабина, ванна, стиральная машина, подогрев полов. Телевизор, высокоскоростной интернет. Можно с детьми. Можно с животными. Возможна оплата по безналу. Без комиссии для арендатора. Есть презентации в pdf на русском или английском для партнеров. Сдаю 3-комнатную квартиру в переулке Ружейный в Москве.



















































































