


554 200 ₽/м²
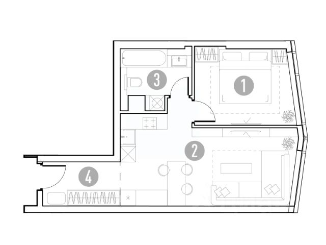
Прямая продажа от застройщика. Продаётся 1-комнатная квартира общей площадью 42.70 м² без отделки в ЖК Веер на 14-м этаже 59 этажного дома. Жилой комплекс бизнес-класса Веер от компании MR — это футуристичный мультиквартал, расположенный в престижной локации на западе Москвы. Благодаря переменной высоте башен — двух 22-этажных, 46-этажной и двух 59-этажных — возникает динамичность в силуэте комплекса, а его яркий образ вносит разноплановость в архитектурный пейзаж района. Расположение и транспортная доступность: • Веер удобно расположен в непосредственной близости от Кутузовского проспекта, обеспечивая быстрый доступ к центральным районам Москвы • Комплекс находится непосредственно напротив самого большого природного заказника в Москве - парка "Долина реки Сетунь", а за семь минут можно доехать до памятника садово-паркового искусства, Троекуровского леса. • Всего в 15 минутах - центр города, самая престижная бизнес-школа управления России "Сколково", дом творчества "Переделкино". Инфраструктура: Разнообразить свой день резиденты Веер смогут также проводя больше времени на свежем воздухе. Двор разделен на 4 зоны разных эмоций и действий, которые пересечены и соединены веерными прогулочными маршрутами: • Спортивная площадка устроена в глубине "Кленовой рощи" • В "Чайном домике" будет создан навес с утеплением для отдыха в любую погоду • Площадки для детей воплотятся в "Волшебный лес" с цветами, зеркалами и световым дизайном • "Центральная площадь" устроена у водного оазиса живописного пруда. Компания MR предлагает своим клиентам специальные условия приобретения квартир в рамках программ ипотечного кредитования от банков-партнеров.




































































































































