


711 000 ₽/м²
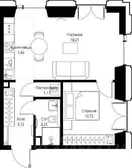
Прямая продажа от застройщика. В ЖК Сет продается 1-комнатная квартира площадью 44.67 м², расположенная в корпусе С, на 6 этаже 28 этажного дома. Сет имеет стратегически выгодное расположение в ЗАО, в районе с большой историей и блестящим будущим: между природной зоной долины реки Сетунь и Кутузовским проспектом. В рамках возведения первой очереди предусмотрено три корпуса высотой 18, 45 и 59 этажей. На верхних этажах спроектированы общедоступные смотровые площадки с панорамным обзором на центр столицы. Преимущества проекта: • Функциональные планировочные решения • Контроль проникновения через входную дверь • Система управления освещением и температурой в квартире • Система защиты от протечек с функцией перекрытия воды • Вход в подъезд по биометрическим считывателям Face ID • Скоростные лифты • Двухуровневый подземный охраняемый паркинг на 495 машино-мест Застройка Сет включает в себя не только жилые корпуса, но и инфраструктурные объекты. Все необходимое для повседневного комфорта будет расположено в шаговой доступности: • Фитнес-Клуб с бассейном • Ведущая городская школа, детский сад и школа искусств • Центр культуры и досуга • Медицинский центр • Кафе и рестораны Расположение комплекса: Пешком: • Метро "Давыдково" - 17 минут • Парк "Долина реки Сетунь" - 3 минуты • Открытие новых станций метро в шаговой доступности в будущем Инфраструктура: Разнообразить свой день резиденты Веер смогут также проводя больше времени на свежем воздухе. Двор разделен на 4 зоны разных эмоций и действий, которые пересечены и соединены веерными прогулочными маршрутами: • Спортивная площадка устроена в глубине "Кленовой рощи" • В "Чайном домике" будет создан навес с утеплением для отдыха в любую погоду • Площадки для детей воплотятся в "Волшебный лес" с цветами, зеркалами и световым дизайном • "Центральная площадь" устроена у водного оазиса живописного пруда. На машине: • "Москва-Сити" - 15 минут • Садовое кольцо - 20 минут • ТЦ "Океания" - 8 минут • ТЦ "Времена года" - 13 минут • Сколково - 12 минут • Гребной канал - 17 минут Компания MR предлагает своим клиентам специальные условия приобретения квартир в рамках программ ипотечного кредитования от банков-партнеров.








































































