


614 210 ₽/м²
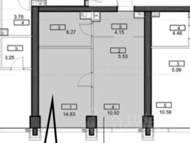
Прямая продажа от застройщика. Продается 1-комнатная квартира общей площадью 40.40 м² с предчистовой отделкой в ЖК премиум-класса Мод на 6-м этаже 44 этажного дома. Мод - жилой комплекс премиум-класса в историческом районе Москвы Марьина Роща, состоящий из трех Клубных домов (9 этажей) и трёх разноэтажных башен (44-55 этажей). Закрытая территория жилого комплекса, продуманное благоустройство, эксплуатируемые кровли стилобата, образовательный центр с детским садом создают приватное пространство для тихой семейной жизни, а городская площадь с фонтанами, ресторан, супермаркет, коммерческая инфраструктура на первых этажах привносят созвучную с ритмом города динамику. Преимущества проекта: • В шаговой доступности новый деловой кластер Москвы • Выразительная авторская архитектура • Единственные в Москве фасады башен из натурального камня • Панорамное остекление и высота потолков до 4,8 м • Квартиры и апартаменты с отделкой MR Base • Многоуровневое благоустройство с зонированием на закрытой территории • Многофункциональный образовательный детский центр с детским садом • Двухуровневый подземный паркинг Транспортная доступность: • 5 минут пешком до станции метро "Марьина роща" • 3 минуты до ТТК • 15 минут до Цветного бульвара Компания MR предлагает своим клиентам специальные условия приобретения квартир в рамках программ ипотечного кредитования от банков-партнеров.














































































































