228 721 ₽/м²
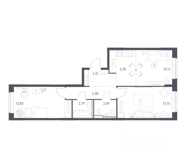
Строим кварталы для жизни с заботой о будущем. Предлагается 2-комнатная квартира комфорт-класса площадью 52,57 кв.м в корпусе 2 на 5-м этаже, в жилом комплексе "Подольские Кварталы". Застройщик сдает квартиры с отделкой в нескольких вариантах: предчистовая, готовая, улучшенная или вариант без нее. Последний подойдет тем, кто хочет создать свой уникальный интерьер и ничем себя не ограничивать. А если не хочется тратить время на ремонт, можно выбрать опцию — с отделкой. Перед тем как отдать ключи, застройщик установит натяжные потолки, поклеит обои под покраску, положит ламинат светлых тонов, а в санузлах — керамическую плитку и керамогранит. Приобрести квартиру возможно по специальным акциям от застройщика, с текущими условиями акций можно ознакомиться в блоке "Акций". Цена динамическая и может отличаться, уточняйте актуальность у застройщика. "Подольские кварталы" — жилой комплекс в Новой Москве, рядом с Дубровицким лесом и рекой Десной. До станции МЦД-2 "Остафьево" - 5 минут на общественном транспорте, до станции МЦД-2 "Силикатная" — 8 минут на машине. Рядом — музей-заповедник "Остафьево", усадьбы Плещеево и Дубровицы. В квартале будут детский сад на 200 мест и учебно-воспитательный комплекс на 1 500 мест, в который войдут школа и детский сад. Первые этажи жилых корпусов займут квартиры, кафе, магазины и салоны красоты. Дворы-парки будут радовать жителей цветением и зеленью: здесь высадят липы, сосны, ели, клены и сирень. Плэйхаб станет местом встреч всех любителей активного отдыха: застройщик оборудует зоны тренажеров и воркаута, площадки для игр в настольный теннис, мяч, шахматы. Также появятся современные игровые площадки для детей. Для автовладельцев предусмотрен многоуровневый паркинг. В проекте — монолитные дома высотой от 9 до 12 этажей. Теплые оттенки фасадов соответствуют дизайн-коду "Янтарный берег". Фасады облицованы ложковой кирпичной кладкой.






























































































