


413 308 ₽/м²
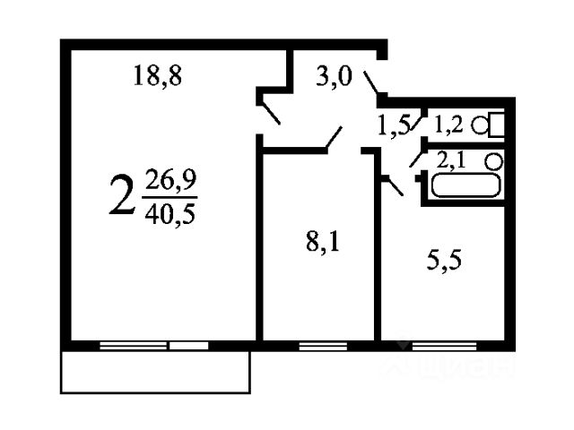
Цена указана с учётом скидки при 100%-й оплате, несубсидированной ипотеке, рассрочке (кроме программы "Рассрочка 0%"). Продается 2-комнатная квартира площадью 69.00 кв. м с отделкой. Квартира находится на 5 этаже 26-этажного корпуса 4, в новом жилом комплексе бизнес-класса Левел Войковская, расположенном рядом с живописным заповедником "Покровское-Стрешнево" (застройщик - компания Level Group/Левел групп). Прекрасная транспортная доступность - 7 мин. пешком до станции МЦК "Балтийская"; - 15 мин. пешком до станции метро "Войковская"; - 8 мин. на машине до ТТК; - 15 мин. на машине до центра Москвы; - 20 мин. на машине до Москва-Сити. Продуманный архитектурный проект - стильная архитектура от мастерской Фефелова В. В.; - панорамные виды на парки, Химкинское водохранилище и Останкинскую башню; - лобби с высотой потолков до 6,45 метров; - более 20 видов планировок, включая редкие форматы квартир с террасой и увеличенной высотой потолков до 5,42 метров; - 2 варианта дизайнерской отделки в корпусе 4 как дополнительная опция к предчистовой отделке: стиль Модерн в светлых холодных тонах и стиль Классик в нейтральной бежевой гамме. Квартиры в корпусах 3 и 5 сдаются без отделки. Расположение Жилой комплекс Левел Войковская строится в престижном Северном округе Москвы, где развитая инфраструктура и живописная природа переплетаются в единый ансамбль. Войковский район окружают парки и набережные. В шаговой доступности - парк "Покровское-Стрешнево", не более 15-ти минут на велосипеде занимает путь до Тимирязевского парка и 9-ти минут до парка усадьбы Михалково. Рядом более 60 школ, 75 дошкольных учреждений, 17 государственных и 6 частных вузов, 25 супермаркетов, 4 торговых центра, среди которых ТЦ "Метрополис" и ТЦ "Авиапарк". Внутренняя инфраструктура На территории жилого комплекса предусмотрены коммерческие помещения: кафе, ресторан, пекарня и другие сервисы на первых этажах корпусов. Для жителей будет доступен отапливаемый подземный паркинг на 244 машино-места с доступом с любого этажа на лифте. На территории паркинга будет расположено 125 кладовых помещений для хранения сезонного инвентаря. Лобби и благоустройство Дизайн лобби жилого комплекса Левел Войковская создан совместно с бюро "Бланк Архитектс" (Blank Architects). Теплая цветовая гамма, ресепшен, зоны ожидания, лапомойки и гостевые санузлы - каждая деталь превращает лобби в комфортное продолжение вашего дома. 1,15 га площади в первых двух этапах строительства отведено под приватный внутренний двор, который спроектирован совместно с бюро "Правда". Детские площадки для всех возрастов, спортивные пространства для йоги, уличных тренировок и петанка, уютные зоны для тихого отдыха или работы. Здесь утро начинается с вдохновения, а вечер наполнен приятными моментами. Лифты Комфортное перемещение внутри жилого комплекса обеспечат надёжные лифты с доступом в паркинг с жилых этажей. В каждом корпусе предусмотрено по 3 грузопассажирских лифта.





































































































